
Thomas Schaller Immobilien
Herr Christian Schreiner
Kontaktiere den Anbieter schriftlich, es ist keine Telefonnummer hinterlegt.
Preise & Kosten
Provision für Käufer
3,57% vom Kaufpreis (inkl. MwSt.)
Lage
Die Wohnung befindet sich in einer angenehmen Wohnlage in Parsberg, eingebettet in ein überwiegend von Wohnhäusern geprägtes Umfeld. Durch die gewachsene Struktur der Stadt sind viele Alltagswege kurz: Einkaufsmöglichkeiten, Bäcker, Gastronomie, Ärzte und Apotheken sind im Stadtgebiet gut erreichbar. Familien profitieren von...
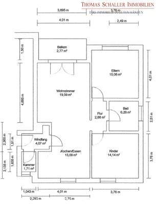
Die Wohnung
Wohnungslage
1. Geschoss
Bezug
sofort
Wohnanlage
Energie & Heizung
Warum sehe ich diese Anzeige? – Du siehst diese Anzeige basierend auf Ihrer Navigation auf unserer Website und den Suchkriterien, die du verwendet hast.
Energieausweistyp
Verbrauchsausweis
Gebäudetyp
Wohngebäude
Wesentliche Energieträger
GAS
Gültigkeit
bis 16.07.2034
Effizienzklasse
D
Endenergieverbrauch
105,90 kWh/(m²·a) - Warmwasser enthalten
Weitere Energiedaten
Energieträger
Gas
Heizungsart
Zentralheizung
Details
Objektbeschreibung
Diese gepflegte 3,5-Zimmer-Eigentumswohnung befindet sich im 1. Obergeschoss eines sehr ordentlichen Mehrfamilienhauses mit insgesamt neun Wohneinheiten in ruhiger Wohnlage. Das Gebäude macht einen dauerhaft gepflegten Eindruck, die Eigentümergemeinschaft kümmert sich verantwortungsbewusst um Haus und Anlage und sorgt so für...
Preisinformation
1 Stellplatz, Kaufpreis: 10.000,00 EUR
Weitere Informationen
Sonstiges
Die Nachweis- oder Vermittlungsprovision beträgt:
Kaufobjekte: für den Käufer 3,57% des notariell beurkundeten Kaufpreises inklusive 19% Mehrwertsteuer und ist fällig am Tag der notariellen Beurkundung. Es besteht ebenso der gleiche Vertrag mit dem Verkäufer.
Alle Angaben in diesem Exposé...
Anbieter der Immobilie
Thomas Schaller Immobilien
Herrnbühlstraße 5, 90602 Pyrbaum
Herr Christian Schreiner
Dein Ansprechpartner
Kontaktiere den Anbieter schriftlich, es ist keine Telefonnummer hinterlegt.
Online-ID: 2mfyf5p
Referenznummer: 384240
Finde Angebote wie dieses
Hier geht es zu unserem Impressum, den Allgemeinen Geschäftsbedingungen, den Hinweisen zum Datenschutz und nutzungsbasierter Online-Werbung.