
Immobilien Köbler
Frau Andrea Köbler
004 ···
Nr. anzeigenPreise & Kosten
Provision für Käufer
3,57 % inkl. MwSt.
Lage
Sindelsdorf liegt im Alpenvorland zwischen Starnberger See und Kochelsee am Rand des Kochelseemoores im schönen Pfaffenwinkel. Direkt an der Autobahn München-Garmisch gelegen, ist Sindelsdorf der ideale Ausgangspunkt für Berufspendler und Naturfreunde.
In dem 1200 Seelen Dorf befindet sich ein Kindergarten, auch...
Das Haus
Kategorie
Mehrfamilienhaus
Baujahr
1974
Bezug
kurzfristig möglich
Energie & Heizung
Warum sehe ich diese Anzeige? – Du siehst diese Anzeige basierend auf Ihrer Navigation auf unserer Website und den Suchkriterien, die du verwendet hast.
Energieausweistyp
Bedarfsausweis
Gebäudetyp
Wohngebäude
Baujahr laut Energieausweis
1974
Wesentliche Energieträger
OEL
Gültigkeit
bis 29.01.2032
Effizienzklasse
F
Endenergiebedarf
175,70 kWh/(m²·a)
Weitere Energiedaten
Heizungsart
offener Kamin, Zentralheizung
Details
Objektbeschreibung
Dieses gepflegte Zweifamilienhaus mit Einliegerwohnung besticht durch seine ruhige Lage, den riesigen Garten und den durchdachten Grundriss. Das ca. 988 m² große Grundstück befindet sich in Sindelsdorf in einer angenehmen, familienfreundlichen Umgebung mit herrlichem Bergblick.
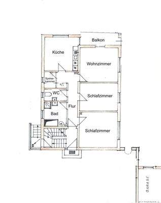
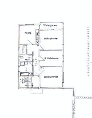
Das Haus umfasst drei Wohneinheiten, die...
Ausstattung
Vom hellen, geräumigen, mit Marmor belegten Treppenhaus gelangen Sie in die einzelnen Wohneinheiten und in den Keller.
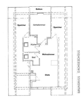
3,5-Zimmer-Erdgeschoss-Wohnung:
Der hell geflieste Flur mit Holzdecke bietet Ihnen eine Garderobennische und einen Treppenabgang in den beheizbaren Hobbyraum mit großem Fenster im Untergeschoss...
Preisinformation
1 Stellplatz
2 Garagenstellplätze
Weitere Informationen
Sonstiges
Die Immobilien Köbler tritt als Nachweis- und Vermittlungsmakler für beide Vertragsparteien auf. Diese Informationen wurden mit großer Sorgfalt nach Angaben des Eigentümers erstellt. Für die Richtigkeit der Angaben haftet der Vermieter/Verkäufer, wir übernehmen hierfür keine Gewähr.
Irrtum und...
Anbieter der Immobilie
Immobilien Köbler
Karlstraße 57, 82377 Penzberg
Online-ID: 2mfyw55
Referenznummer: KL-4629
Finde Angebote wie dieses
Hier geht es zu unserem Impressum, den Allgemeinen Geschäftsbedingungen, den Hinweisen zum Datenschutz und nutzungsbasierter Online-Werbung.