
HTN Immobilien Management GmbH Exklusivpartner von FALC Immobilien Solingen
Frau Sabine Littera
+49 ···
Nr. anzeigenPreise & Kosten
Provision für Käufer
3.57 % inkl. 19 % gesetzl. MwSt.
Lage
Dieses attraktive Objekt befindet sich in einer sehr gefragten Wohnlage Solingens - ruhig gelegen und dennoch hervorragend angebunden. Die Umgebung zeichnet sich durch eine gewachsene Nachbarschaft, gepflegte Wohnhäuser sowie viel Grün aus, was besonders Familien und Berufspendler gleichermaßen anspricht.
In direkter...
Das Haus
Kategorie
Mehrfamilienhaus
Baujahr
1902
Derzeitige Nutzung
vermietet
Energie & Heizung
Warum sehe ich diese Anzeige? – Du siehst diese Anzeige basierend auf Ihrer Navigation auf unserer Website und den Suchkriterien, die du verwendet hast.
Energieausweistyp
Bedarfsausweis
Gebäudetyp
Wohngebäude
Wesentliche Energieträger
Holzpellets
Gültigkeit
21.09.2021 bis 20.09.2031
Effizienzklasse
E
Endenergiebedarf
136,00 kWh/(m²·a)
Weitere Energiedaten
Energieträger
Pellets
Heizungsart
Zentralheizung
Details
Objektbeschreibung
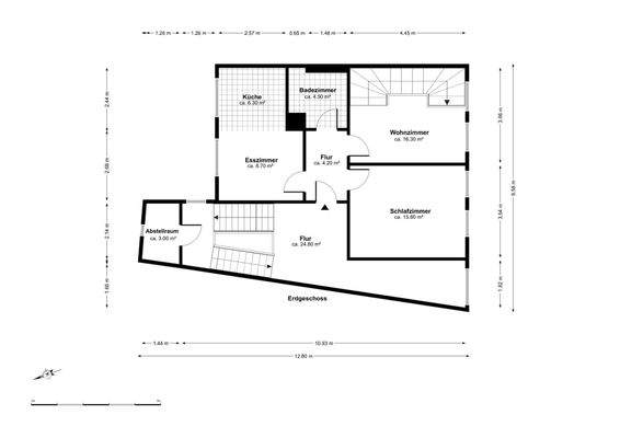
Zum Verkauf steht ein gepflegtes und fortlaufend modernisiertes Mehrfamilienhaus in zentraler Lage von Solingen aus dem Baujahr 1902. Die Immobilie umfasst drei Wohneinheiten, die sich über das Erdgeschoss, das erste Obergeschoss sowie das zweite Obergeschoss in Verbindung mit dem Dachgeschoss und dem Spitzboden erstrecken...
Ausstattung
- Mehrfamilienhaus mit drei Wohneinheiten
- Baujahr: 1902
- Massiv Bauweise
- Vollständig unterkellert
- Separate Abstellräume im Hausflur
- Fortlaufend modernisiert (2020-2024)
- Ausgebauter Spitzboden mit Dachterrasse und Edelstahlgeländer, Fenster getänt
- elektrische Markise
- Miele Küche in...
Preisinformation
1 Carportplatz
Weitere Informationen
Sonstiges
Wir sind stolz, durch unser Engagement in den führenden Internetportalen überdurchschnittlich gute Bewertungen erzielt zu haben. Die Fachzeitschrift "Focus-Spezial" hat unser Unternehmen seit 2013 durchgehend als eines der besten Immobilienunternehmen in Deutschland ausgezeichnet.
Als FALC Exklusivpartner...
Dokumente
Anbieter der Immobilie
HTN Immobilien Management GmbH Exklusivpartner von FALC Immobilien Solingen
Höher Straße 4, 42655 Solingen
Online-ID: 2mfzh5x
Referenznummer: FALC-SL-79524
Finde Angebote wie dieses
Hier geht es zu unserem Impressum, den Allgemeinen Geschäftsbedingungen, den Hinweisen zum Datenschutz und nutzungsbasierter Online-Werbung.