
Parma Immobilien
Frau Kira Woldt
004 ···
Nr. anzeigenPreise & Kosten
Provision für Käufer
3,57 %
Lage
Die Immobilie befindet sich in ruhiger Wohnlage von Kreuzau-Stockheim, dem größten Ortsteil der Gemeinde Kreuzau im Kreis Düren. Der Ort liegt am Übergang zwischen der Zülpicher Börde und der Drover Heide - einer landschaftlich reizvollen Umgebung mit hohem Freizeit- und Erholungswert.
Stockheim bietet eine gute...
Das Haus
Kategorie
Einfamilienhaus
Baujahr
1974
Energie & Heizung
Warum sehe ich diese Anzeige? – Du siehst diese Anzeige basierend auf Ihrer Navigation auf unserer Website und den Suchkriterien, die du verwendet hast.
Weitere Energiedaten
Energieträger
Öl
Heizungsart
offener Kamin, Zentralheizung
Details
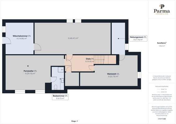
Objektbeschreibung
Dieser freistehende Bungalow wurde im Jahr 1974 in massiver Bauweise auf einem ca. 1.191 m² großen Grundstück errichtet und bietet Ihnen vielfältige Möglichkeiten, Ihren persönlichen Traum vom Eigenheim zu verwirklichen.
Das Haus überzeugt durch seinen besonderen Charme, das offen gestaltete Wohnkonzept und den...
Ausstattung
Bodenbeläge: Fliesen, Teppich
Einfachverglaste Holzfenster von 1974
manuelle Rollläden
Öl-Zentralheizung von 1997
separates Gäste-WC vom BJ
Tageslichtbad mit Badewanne und Dusche vom BJ
Kamin im Wohnzimmer
Terrasse und großzügiger Garten mit Privatsphäre
Carport & Garage rechts angrenzend an das...
Weitere Informationen
Sonstiges
Bei Fragen stehen wir Ihnen gerne zur Verfügung.
Bitte nehmen Sie Kontakt über das Kontaktformular auf.
Kira Woldt
Immobilienmaklerin
Parma Immobilien
Monschauer Straße 64
52355 Düren
Kontakt
Telefon: +49 2421 9748688
E-Mail...
Anbieter der Immobilie
Online-ID: 2mg2j5e
Referenznummer: 790
Finde Angebote wie dieses
Hier geht es zu unserem Impressum, den Allgemeinen Geschäftsbedingungen, den Hinweisen zum Datenschutz und nutzungsbasierter Online-Werbung.