
Crozilla.com
Opereta
+38 ···
Nr. anzeigenPreise & Kosten
Provision für Käufer
Bitte beachte, das Angebot kann bei Vertragsabschluss die Zahlung einer Provision beinhalten. Weitere Informationen erhältst Du vom Anbieter.
Die Immobilie
Zu diesem Angebot wurden vom Anbieter keine weiteren Daten hinterlegt. Für weitere Informationen bitte den Anbieter kontaktieren.
Nach Informationen fragenDetails
Objektbeschreibung
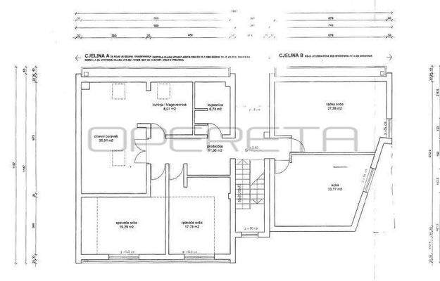
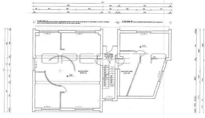
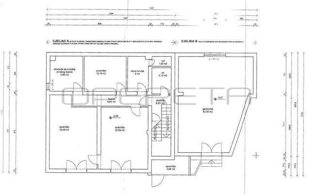
PRODAJA, MARKUSEVEC, BIDROVECKA CESTA, KUCA 401,82m2 NKP + POSLOVNA ZGRADA 939,90m2 NKP.
Na prodaju kuca i poslovna zgrada na Bidroveckoj cesti. Kuca (401,82m2 nkp) je razvedena u 3 etaze, sastoji se od podruma, prizemlja i potkrovlja. Trenutno organizirana kao poslovno-stambeni objekt. Poslovna zgrada (939,90m2 nkp) je...
Weitere Informationen
Stichworte
Wohnfläche: 1.342,00 m²
Anbieter der Immobilie
Crozilla.com
Nova cesta 60, 10000 ZAGREB
Online-ID: 2mg2s52
Referenznummer: 16423207_11
Finde Angebote wie dieses
Hier geht es zu unserem Impressum, den Allgemeinen Geschäftsbedingungen, den Hinweisen zum Datenschutz und nutzungsbasierter Online-Werbung.