
Walser Residential GmbH
Herr Markus Hallmann
004 ···
Nr. anzeigenPreise & Kosten
Provision für Käufer
provisionsfrei
Lage
Die familienfreundliche Umgebung überzeugt mit ausgezeichneter Infrastruktur. Einkaufsmöglichkeiten, darunter Supermärkte, sind fußläufig erreichbar. Ein wöchentlicher Bauernmarkt bietet frische regionale Produkte. Kitas, Schulen und die Bücherei befinden sich in unmittelbarer Nähe. Parks und Spielplätze laden zu vielfältigen...
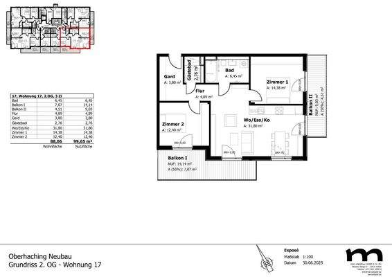
Die Wohnung
Wohnungslage
2. Geschoss
Bezug
vrstl. Ende 2027
Wohnanlage
Energie & Heizung
Warum sehe ich diese Anzeige? – Du siehst diese Anzeige basierend auf Ihrer Navigation auf unserer Website und den Suchkriterien, die du verwendet hast.
Energieausweistyp
Bedarfsausweis
Gebäudetyp
Wohngebäude
Baujahr laut Energieausweis
2025
Wesentliche Energieträger
FERN
Gültigkeit
bis 26.05.2035
Effizienzklasse
A
Endenergiebedarf
46,30 kWh/(m²·a)
Weitere Energiedaten
Energieträger
Fernwärme
Heizungsart
Zentralheizung
Details
Objektbeschreibung
***Gerne stehen wir Ihnen für eine Beratung flexibel nach Terminvereinbarung zur Verfügung! Terminvereinbarung unter: 089 / 66 59 60***
In der Ortsmitte von Oberhaching entsteht ein individueller Neubau umgeben von altem Baumbestand. Die großzügige 3 Zimmer Gartenwohnung ist ein wahres Juwel, alle Räume haben Zugang...
Ausstattung
Highlights:
- Zuhause im begehrten Münchner Süden - zentrale Lage in der Ortsmitte
- Charmantes Ensemble mit nur 20 Wohnungen, umrahmt mit altem Baumbestand
- Familienwohnungen mit Balkon oder Terrasse und Garten
- Durchdachte Grundrisse und praktische Raumaufteilung
- Interessante Maisonette-Wohnungen
-...
Preisinformation
1 Tiefgaragenstellplatz, Kaufpreis: 27.900,00 EUR
Weitere Informationen
Sonstiges
Hinweis zum Energieausweis:
Das Objekt befindet sich noch im Bau/Planung.
-Es liegt ein vorläufiger Energieausweis vor
-Bitte beachten: die gemachten Angaben stammen aus dem vorläufigen Energieausweis!
-Die Angaben aus dem vorläufigen Energieausweis können von denen des endgültigen Energieausweises...
Anbieter der Immobilie
Walser Residential GmbH
Bruderstr. 5a, 80538 München
Online-ID: 2mg3h5g
Referenznummer: 16863
Finde Angebote wie dieses
Weitere Immobilien
Hier geht es zu unserem Impressum, den Allgemeinen Geschäftsbedingungen, den Hinweisen zum Datenschutz und nutzungsbasierter Online-Werbung.