
Immobilien Kontor München
Herr Christoph Krautbauer
Kontaktiere den Anbieter schriftlich, es ist keine Telefonnummer hinterlegt.
Preise & Kosten
Provision für Käufer
2,975 % aus dem Kaufpreis
Lage
1A-Lage
Das freistehende Einfamilienhaus liegt in einer ruhigen, gepflegten Wohngegend am östlichen Ortsrand von Siegertsbrunn in zweiter Baureihe. Die S-Bahn sowie sämtliche Einrichtungen des täglichen Bedarfs sind fußläufig oder bequem mit dem Fahrrad erreichbar.
Die Gemeinde Siegertsbrunn verbindet naturnahes...
Das Haus
Kategorie
Einfamilienhaus
Baujahr
1982
Bezug
kurzfristig möglich
Energie & Heizung
Warum sehe ich diese Anzeige? – Du siehst diese Anzeige basierend auf Ihrer Navigation auf unserer Website und den Suchkriterien, die du verwendet hast.
Energieausweistyp
Bedarfsausweis
Gebäudetyp
Wohngebäude
Baujahr laut Energieausweis
1982
Wesentliche Energieträger
Öl
Gültigkeit
15.05.2025 bis 14.05.2035
Effizienzklasse
G
Endenergiebedarf
247,80 kWh/(m²·a)
Weitere Energiedaten
Haustyp
Massivhaus
Energieträger
Öl
Heizungsart
offener Kamin, Zentralheizung
Details
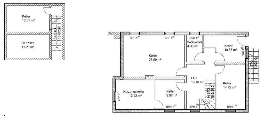
Objektbeschreibung
Sie sind auf der Suche nach einem neuen Zuhause mit viel Platz? Dann könnte dieses Objekt genau das Richtige für Sie sein. Angeboten wird ein solide errichtetes, großzügiges Einfamilienhaus in ruhiger Ortsrandlage von Siegertsbrunn.
Das Haus befindet sich in gepflegtem Zustand und war bis vor Kurzem bewohnt. Vor einem...
Ausstattung
Die Ausstattung des Hauses ist hochwertig und voll nutzbar, wenn auch in Teilen nicht mehr zeitgemäß. Beheizt wird das Gebäude derzeit über eine Öl-Zentralheizung sowie einen Kachelofen; die Heizungsanlage muss erneuert werden. Hierfür bestehen vielfältige Modernisierungsmöglichkeiten.
Das Haus bietet hervorragende...
Preisinformation
1 Stellplatz
1 Garagenstellplatz, Kaufpreis: 25.000,00 EUR
Weitere Informationen
Sonstiges
Das Grundstück ist real geteilt und liegt in zweiter Baureihe. Die Zufahrt und Erreichbarkeit sind durch ein dinglich gesichertes Geh- und Fahrtrecht gewährleistet.
Stichworte
Garage vorhanden, Anzahl der Schlafzimmer: 4, Anzahl der Badezimmer: 3, Anzahl der separaten WCs: 3, Anzahl Balkone: 1, Anzahl...
Anbieter der Immobilie
Immobilien Kontor München
Möhlstraße 16, 81675 München
Herr Christoph Krautbauer
Dein Ansprechpartner
Kontaktiere den Anbieter schriftlich, es ist keine Telefonnummer hinterlegt.
Online-ID: 2mg8x5v
Referenznummer: 6127#7n4xhB
Finde Angebote wie dieses
Hier geht es zu unserem Impressum, den Allgemeinen Geschäftsbedingungen, den Hinweisen zum Datenschutz und nutzungsbasierter Online-Werbung.