
immoS - Ihr Immobilienpartner
Frau Svenja Heinz
+49 ···
Nr. anzeigenPreise & Kosten
Kaution
2 Kaltmieten
Provision für Mieter
provisionsfrei
Warum sehe ich diese Anzeige? – Du siehst diese Anzeige basierend auf Ihrer Navigation auf unserer Website und den Suchkriterien, die du verwendet hast.
Lage
Die Bürofläche/Praxisfläche befindet sich in einer der begehrtesten Lagen Triers - am Petrisberg, direkt am Wasserband. Das moderne Quartier verbindet urbanes Flair mit naturnaher Umgebung und zählt zu den hochwertigsten Adressen der Stadt. Trier, die älteste Stadt Deutschlands, liegt malerisch im Moseltal und bietet eine...
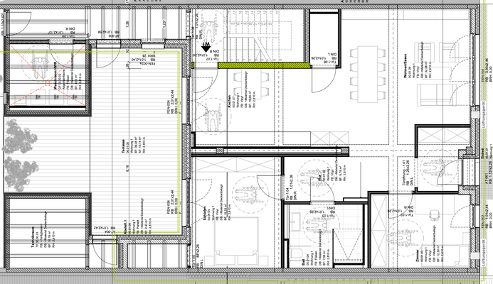
Büro-/Praxisfläche
Kategorie
Bürofläche
Bezug
01.01.2026
Energie & Heizung
Warum sehe ich diese Anzeige? – Du siehst diese Anzeige basierend auf Ihrer Navigation auf unserer Website und den Suchkriterien, die du verwendet hast.
Weitere Energiedaten
Heizungsart
Fußbodenheizung, Luft-/Wasser-Wärmepumpe
Details
Objektbeschreibung
Diese neuwertigen Räumlichkeiten bieten eine moderne Arbeitsumgebung auf einer Fläche von ca. 123 m² und können sowohl als Büro oder als Praxis genutzt werden. Die Immobilie wurde im Jahr 2025 fertig gestellt und gewährleistet hohe Qualität und Effizienz. Ausgestattet mit Fußbodenheizung, betrieben über eine umweltfreundliche...
Weitere Informationen
Sonstiges
Die Angaben zum Objekt stammen vom Verkäufer bzw. der Verkäuferin. Für die Richtigkeit und Vollständigkeit der Angaben kann keine Gewähr bzw. Haftung übernommen werden. Ein Zwischenverkauf und Irrtümer sind vorbehalten.
Stichworte
Tiefgarage vorhanden, modernisiert: 2025
Anbieter der Immobilie
immoS - Ihr Immobilienpartner
Stahler Hügel 7a, 54634 Bitburg
Online-ID: 2mgb25n
Referenznummer: 122
Finde Angebote wie dieses
Hier geht es zu unserem Impressum, den Allgemeinen Geschäftsbedingungen, den Hinweisen zum Datenschutz und nutzungsbasierter Online-Werbung.