
ACCENTA Immobilien
Herr Michael Riedler
+43 ···
Nr. anzeigenPreise & Kosten
Provision für Käufer
Bitte beachte, das Angebot kann bei Vertragsabschluss die Zahlung einer Provision beinhalten. Weitere Informationen erhältst Du vom Anbieter.
Lage
Lacknergasse, Elterleinplatz, AKH
Die Wohnung
Wohnungslage
3. Geschoss
Wohnanlage
Energie & Heizung
Warum sehe ich diese Anzeige? – Du siehst diese Anzeige basierend auf Ihrer Navigation auf unserer Website und den Suchkriterien, die du verwendet hast.
Heizwärmebedarf (HWB)
41,40 kWh/(m²·a)
Gesamtenergieeffizienz (fGEE)
0,75
Details
Objektbeschreibung
DAS PROJEKT | WWW.ACCENTA-IMMO.AT/LACK31 [https://www.accenta-immo.at/lack31]
In der Lacknergasse im 17. Bezirk entsteht ein moderner Neubau mit exklusivem Wohnkomfort. Zum Verkauf stehen drei hochwertige Dachgeschosswohnungen mit großzügigen Außenflächen sowie dreizehn attraktive Serviced-Apartments für...
Preisinformation
Preis Möbel- und Einrichtungspaket: EUR 27.756,00 zzgl. 20% USt.
Weitere Informationen
Stichworte
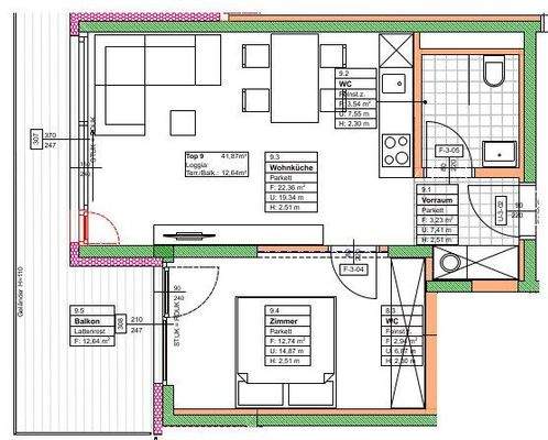
Anzahl der Badezimmer: 1, Anzahl der separaten WCs: 1, Anzahl Balkone: 1, Balkon-Terrassen-Fläche: 12,64 m², Bundesland: Wien, 7 Etagen, Wohnungsnr.: 09
Anbieter der Immobilie
ACCENTA Immobilien
Georg-Sigl-Gasse 1/3, 1090 Wien
Online-ID: 2mgc95l
Referenznummer: OBGC202510230843584594dfefe0f5c
Finde Angebote wie dieses
Günstige Immobilienfinanzierung einfach online berechnen
Persönliches Angebot berechnenWarum sehe ich diese Werbung? – Du siehst diese Werbung basierend auf Deiner Navigation auf unserer Website und der von Dir verwendeten Suchkriterien.
Diese Werbung wird bezahlt von durchblicker
Werbung melden
Hier geht es zu unserem Impressum, den Allgemeinen Geschäftsbedingungen, den Hinweisen zum Datenschutz und nutzungsbasierter Online-Werbung.