

Meyerdierks Immobilien
Frau Frederike Grändorf
044 ···
Nr. anzeigenPreise & Kosten
Provision für Käufer
2,975 %
Lage
Die Seniorenresidenz befindet sich im sehr grünen Oldenburger Stadtteil Haarentor-Wechloy, in ruhiger Wohnlage. Mittels der Bushaltestellen Grotepool und Uni/Campus Haarentor kann die schöne Oldenburger Innenstadt mit der ältesten Fußgängerzone Deutschlands, in welcher viele schöne Cafes, Restaurants und Geschäfte zu finden...
Die Wohnung
Wohnungslage
Erdgeschoss
Bezug
bezugsfrei
Wohnanlage
Energie & Heizung
Warum sehe ich diese Anzeige? – Du siehst diese Anzeige basierend auf Ihrer Navigation auf unserer Website und den Suchkriterien, die du verwendet hast.
Energieausweistyp
Verbrauchsausweis
Gebäudetyp
Wohngebäude
Baujahr laut Energieausweis
2008
Wesentliche Energieträger
ERDGAS_LEICHT
Gültigkeit
bis 14.07.2035
Effizienzklasse
E
Endenergieverbrauch
149,70 kWh/(m²·a)
Weitere Energiedaten
Energieträger
Gas
Heizungsart
Zentralheizung
Details
Objektbeschreibung
Die zum Verkauf stehende 3-Zimmer Eigentumswohnung befindet sich in einer wunderschön angelegten Seniorenanlage im Oldenburger Stadtteil Wechloy. Die Anlage bietet Menschen ab einem Lebensalter von 60 Jahren ein barrierefreies und selbstbestimmtes Leben in den eigenen vier Wänden.
Insgesamt befinden sich neben dem...
Ausstattung
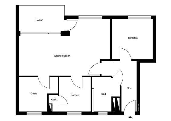
- 3-Zimmer Wohnung mit großzügig geschnittenem, hellen Wohn-/Esszimmer mit Küchenzeile
- barrierefrei
- Balkon mit Südost-Ausrichtung
- Einbauküche im Kaufpreis enthalten
- gefliestes Badezimmer mit Fenster zum Laubengang
- Bodenbeläge: Laminat, Fliesen, Teppichboden
- Fenster: 2-fach Wärmeverglasung in...
Weitere Informationen
Sonstiges
Der Verkäufer hat uns mit der Vermittlung oder dem Nachweis eines Käufers beauftragt. Die Provisionsteilung erfolgt hälftig. Auf den Käufer entfällt eine Maklercourtage in Höhe von 2,5 % des Kaufpreises zzgl. Ust.. Die Angaben des Angebotes werden uns von den Eigentümern oder Dritten geliefert. Eine rechtliche...
Anbieter der Immobilie
Meyerdierks Immobilien
Staugraben 6, 26122 Oldenburg

Online-ID: 2mgf65n
Referenznummer: 7111
Finde Angebote wie dieses
Hier geht es zu unserem Impressum, den Allgemeinen Geschäftsbedingungen, den Hinweisen zum Datenschutz und nutzungsbasierter Online-Werbung.