
Trummer Immobilien GmbH & Co. KG
Herr Roland Trummer
094 ···
Nr. anzeigenPreise & Kosten
Kaution
19.500,00 Soweit nicht anders erwähnt 3 Monatsmieten
Provision für Mieter
Ortsübliche Provision vom Käufer/Mieter nur im Erfolgsfalle
Warum sehe ich diese Anzeige? – Du siehst diese Anzeige basierend auf Ihrer Navigation auf unserer Website und den Suchkriterien, die du verwendet hast.
Lage
Regenstauf
Die Industriefläche
Kategorie
Produktionshalle
Baujahr
2014
Bezug
sofort
Energie & Heizung
Warum sehe ich diese Anzeige? – Du siehst diese Anzeige basierend auf Ihrer Navigation auf unserer Website und den Suchkriterien, die du verwendet hast.
Weitere Energiedaten
Energieträger
Gas
Details
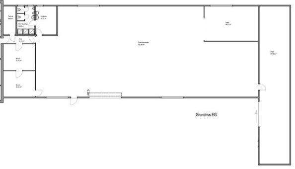
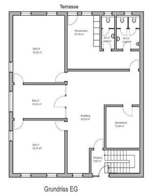
Objektbeschreibung
Kurzbeschreibung
Gerne stehen wir für eine Besichtigung zur Verfügung.
Objekt
In Regenstauf bieten wir ein modernes und verkehrsgünstig gelegenes Gewerbeanwesen zum Verkauf und Vermietung an. Über die nahe Autobahn A 93 und Bundesstraße B 15 ist eine hervorragende Anbindung gegeben. Eine Bushaltestelle befindet...
Ausstattung
Lage: Regenstauf
Mietpreis: EUR 6.500,-
Nebenkosten: EUR 1.156,-
Fläche: ca. 1.016 m²
Grundstück: ca. 2.685 m²
Zimmeranzahl: 13
Baujahr: 2014
letzte Modernisierung: 2024
Kaution: EUR 19.500,-
Geschoss(e): EG + OG
Bezug: sofort
teilbar ab: ca. 117 m²
Hallenhöhe: ca. 5 m...
Preisinformation
Nettokaltmiete: 6.500,00 EUR
Weitere Informationen
Sonstiges
Um eine schnelle Bearbeitung zu gewähren benötigen wir Ihre Telefonnummer sowie Ihre komplette Adresse.
Stichworte
Lagerfläche: 1.016,00 m², Nutzfläche: 1.016,00 m², Gesamtfläche: 2.685,00 m², Freifläche: 1.669,00 m², Bundesland: Bayern, modernisiert: 2024, Distanz zur Autobahn: 1, Distanz zum Bus: .4...
Anbieter der Immobilie

Trummer Immobilien GmbH & Co. KG
Online-ID: 2mgft5j
Referenznummer: VH 3871VB
Finde Angebote wie dieses
Hier geht es zu unserem Impressum, den Allgemeinen Geschäftsbedingungen, den Hinweisen zum Datenschutz und nutzungsbasierter Online-Werbung.