
McMakler GmbH
Ihr McMakler Team
080 ···
Nr. anzeigenPreise & Kosten
Provision für Käufer
Die Provision i.H.v. 3,57 % inkl. MwSt. ist mit Kaufvertragsbeurkundung fällig, sofern der Verkaufspreis über 83.000,00 € liegt.
Liegt der Verkaufspreis dagegen bei/unter 83. Weitere Informationen siehe Provisionshinweis.
Lage
Lage: Attraktive, ruhige Lage in Löbejün mit guten Möglichkeiten für Eigennutzer
Bildung und Betreuung: Kindergarten ca. 600 m entfernt, Grund- und weiterführende Schule etwa 4 km
Nahversorgung: Supermarkt, Apotheke und Bankfiliale in maximal 400 m Reichweite
Anbindung: Bushaltestelle ca. 120 m, Bahnhof ca. 4,1 km...
Das Renditeobjekt
Baujahr
1936
Bezug
nach Absprache
Energie & Heizung
Warum sehe ich diese Anzeige? – Du siehst diese Anzeige basierend auf Ihrer Navigation auf unserer Website und den Suchkriterien, die du verwendet hast.
Energieausweistyp
Bedarfsausweis
Gebäudetyp
Wohngebäude
Baujahr laut Energieausweis
1936
Wesentliche Energieträger
Strom
Effizienzklasse
H
Endenergiebedarf
369,20 kWh/(m²·a)
Weitere Energiedaten
Energieträger
Elektro
Heizungsart
Ofen
Details
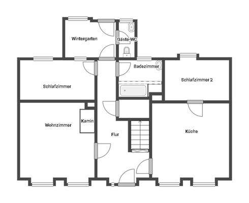
Objektbeschreibung
Objektnr: 1068042
Dieses Einfamilienhaus aus den 1930er-Jahren bietet eine solide Basis mit viel Potenzial für individuelle Wohnideen. Mit ca. 112 m² Wohnfläche, einem großzügigen Grundstück und zusätzlichen Ausbaureserven spricht das Haus alle an, die sich ihr neues Zuhause nach eigenen Wünschen gestalten...
Ausstattung
+ Einfamilienhaus aus den 1930er Jahren mit ca. 112 m² Wohnfläche
+ Großzügiges Grundstück mit Innenhof und mehreren Nebengebäuden, darunter ehem. Stallungen
+ Spitzboden mit Ausbaupotenzial sowie ein praktischer Keller
+ Renovierungsbedürftiger Zustand mit großem Gestaltungsspielraum
+ Letzte Modernisierungen...
Weitere Informationen
Provisionshinweis
Die Provision i.H.v. 3,57 % inkl. MwSt. ist mit Kaufvertragsbeurkundung fällig, sofern der Verkaufspreis über 83.000,00 € liegt.
Liegt der Verkaufspreis dagegen bei/unter 83.000,00 €, ist die fest vereinbarte Mindestprovision i.H.v. mind. 5.950,00 € inkl. MwSt. mit Kaufvertragsbeurkundung fällig...
Anbieter der Immobilie
McMakler GmbH
Am Postbahnhof 17, 10243 Berlin
Online-ID: 2mgfw5l
Referenznummer: e9fb5b88c5
Finde Angebote wie dieses
Hier geht es zu unserem Impressum, den Allgemeinen Geschäftsbedingungen, den Hinweisen zum Datenschutz und nutzungsbasierter Online-Werbung.