

Ruff Immobilien
Frau Olga Ruff
015 ···
Nr. anzeigenPreise & Kosten
Provision für Käufer
3,57 inkl. MwSt., Käufercourtage in Höhe von 3,57% auf den Kaufpreis einschließlich gesetzlicher Mehrwertsteuer ist bei notariellem Vertragsabschluss verdient und fällig.
Lage
Die Immobilie befindet sich in zentraler Lage von Andernach, einer charmanten Stadt am Rhein mit guter Anbindung an Koblenz, Bonn und Köln. Besonders hervorzuheben ist dabei die Nähe des Reihenmittelhauses zur historischen Altstadt. Einkaufsmöglichkeiten, Schulen, Kindergärten und medizinische Versorgung befinden sich in...
Das Haus
Kategorie
Reihenmittelhaus
Baujahr
1915
Energie & Heizung
Warum sehe ich diese Anzeige? – Du siehst diese Anzeige basierend auf Ihrer Navigation auf unserer Website und den Suchkriterien, die du verwendet hast.
Energieausweistyp
Verbrauchsausweis
Gebäudetyp
Wohngebäude
Baujahr laut Energieausweis
1912
Wesentliche Energieträger
Erdgas
Gültigkeit
21.02.2023 bis 21.02.2033
Effizienzklasse
B
Endenergieverbrauch
68,60 kWh/(m²·a)
Weitere Energiedaten
Energieträger
Gas
Heizungsart
Zentralheizung
Details
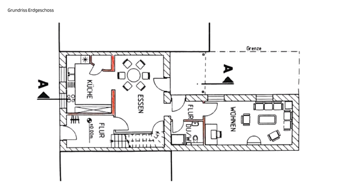
Objektbeschreibung
Dieses Reihenmittelhaus befindet sich in zentraler Lage von Andernach. Die Aufteilung in zwei Wohneinheiten ermöglicht eine vielseitige Nutzbarkeit: Ob für Mehrgenerationenwohnen, Eigennutzer mit dem Wunsch nach zusätzlichem Vermietungspotential oder Kapitalanleger. Im Erdgeschoss erwartet Sie eine charmante ca. 60 m² große...
Ausstattung
- Balkon
- Terrasse
- 2-fach verglaste Kunststofffenster
- elektrisches Dachfenster im Treppenhaus
- bodentiefes Fenster zum Balkon im Dachgeschoss
- Rollläden in allen Räumen
- sichtbare Echtholzbalken im Dachgeschoss
- moderne Zimmertüren
- Gaszentralheizung Bosch (erneuert 2021)
-...
Weitere Informationen
Sonstiges
Dieses Exposé ist eine Vorabinformation. Alle Angaben nach bestem Wissen. Irrtum und Zwischenverkauf vorbehalten. Als Rechtsgrundlage gilt allein der notariell geschlossene Kaufvertrag.
Heizungsart:
Heizkoerper
Anbieter der Immobilie
Ruff Immobilien
Kräwerweg 32, 56626 Andernach

Online-ID: 2mgka5q
Finde Angebote wie dieses
Hier geht es zu unserem Impressum, den Allgemeinen Geschäftsbedingungen, den Hinweisen zum Datenschutz und nutzungsbasierter Online-Werbung.