
Goldschild Immobilien GmbH
Herr Andreas Zittlau
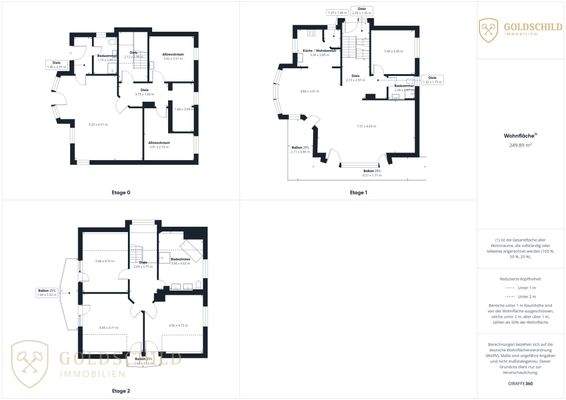
004 ···
Nr. anzeigenPreise & Kosten
Provision für Käufer
3,57 % vom Kaufpreis inkl. gesetzl. MwSt.
Lage
Lagebeschreibung - Attraktives Wohnen in Reutlingen-Oferdingen
Das Einfamilienhaus befindet sich in bevorzugter Aussichtslage von Reutlingen-Oferdingen, einem besonders beliebten Ortsteil zwischen Reutlingen und Tübingen. Oferdingen überzeugt durch seine ideale Mischung aus naturnahem Wohnen und hervorragender...
Das Haus
Kategorie
Einfamilienhaus
Baujahr
2009
Bezug
ab sofort
Energie & Heizung
Warum sehe ich diese Anzeige? – Du siehst diese Anzeige basierend auf Ihrer Navigation auf unserer Website und den Suchkriterien, die du verwendet hast.
Energieausweistyp
Bedarfsausweis
Gebäudetyp
Wohngebäude
Baujahr laut Energieausweis
2009
Wesentliche Energieträger
OEL
Gültigkeit
bis 29.09.2035
Effizienzklasse
E
Endenergiebedarf
149,00 kWh/(m²·a)
Weitere Energiedaten
Energieträger
Öl
Heizungsart
Zentralheizung
Details
Objektbeschreibung
Willkommen in Ihrem neuen Zuhause:
Dieses moderne, freistehende Einfamilienhaus aus dem Jahr 2009 präsentiert sich als ein echtes Wohnjuwel in einer der begehrtesten Lagen von Reutlingen-Oferdingen. Die ruhige, sonnige Aussichtslage, das großzügige Raumangebot und die hochwertige Ausstattung schaffen ein Ambiente, das...
Ausstattung
- Sehr gepflegtes Einfamilienhaus mit sonniger Einliegerwohnung
- Mauerwerk 30 cm Gasbetonsteine
- Dach Isoliert
- Leerrohre für die Installation von Solar/PV ins Dachgeschoss sind vorbereitet
- Zisterne im Garten für Regenwasser Sammlung mit 2.500 Liter vorhanden
- Doppelzügiger Kamin: Anschluss einer...
Preisinformation
3 Stellplätze
1 Garagenstellplatz
Weitere Informationen
Sonstiges
Da wir uns bei allen Angaben auf die Informationen Dritter stützen müssen, können wir keine Gewähr für deren Richtigkeit und Vollständigkeit übernehmen. Bitte haben Sie Verständnis dafür, dass wir nur Anfragen mit vollständiger Adressangabe und erreichbarer Handynummer bearbeiten können. Nachdem Ihre Anfrage per...
Anbieter der Immobilie
Online-ID: 2mgkp5f
Referenznummer: GI-AZ-398
Finde Angebote wie dieses
Hier geht es zu unserem Impressum, den Allgemeinen Geschäftsbedingungen, den Hinweisen zum Datenschutz und nutzungsbasierter Online-Werbung.