
ohne-makler.net - Immobilien selbst vermarkten
Privat von Stefan
Kontaktiere den Anbieter schriftlich, es ist keine Telefonnummer hinterlegt.
Preise & Kosten
nicht in Warmmiete enthalten
Kaution
1.489,00
Warum sehe ich diese Anzeige? – Du siehst diese Anzeige basierend auf Ihrer Navigation auf unserer Website und den Suchkriterien, die du verwendet hast.
Lage
Das Appartement befindet sich im beliebten Krefelder Stadtteil Hüls. Hüls zeichnet sich durch eine moderate Bevölkerungsdichte und eine Mischung aus jungen Familien und Senioren aus. Die Nachbarschaft gilt als sicher und familienfreundlich, mit Einfamilienhäusern, die eine ruhige Wohnatmosphäre schaffen. Der Hülser Markt mit...
Die Wohnung
Wohnungslage
Erdgeschoss
Bezug
sofort
Wohnanlage
Energie & Heizung
Warum sehe ich diese Anzeige? – Du siehst diese Anzeige basierend auf Ihrer Navigation auf unserer Website und den Suchkriterien, die du verwendet hast.
Weitere Energiedaten
Energieträger
Gas
Heizungsart
Zentralheizung
Details
Objektbeschreibung
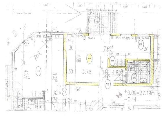
Suche ab sofort einen Nachmieter/in für ein 37,27 m² Appartement im Betreuten Wohnen des Lazarus Hauses in Krefeld. Das Appartement ist barrierefrei und rollstuhlgerecht. Das Bad ist mit einer ebenerdigen bodengleichen Dusche ausgestattet. Der Boden ist mit Parkett ausgelegt. Das Appartement ist sehr ruhig im Erdgeschoss...
Ausstattung
Terrasse, Keller, Fahrstuhl, Duschbad, Einbauküche, Barrierefrei, Parkett, Fliesen
Preisinformation
1 Stellplatz
Nettokaltmiete: 744,00 EUR
Weitere Informationen
Sonstiges
Heizungsart: Zentralheizung
Energieträger: Gas
Energieausweis nicht vorhanden
Makleranfragen nicht erwünscht. Nach § 7 UWG sind unaufgeforderte Kontaktaufnahmen durch Makler ohne ausdrückliche Einwilligung des Empfängers verboten!
ohne-makler (OM) ist weder Anbieter noch Vermittler der...
Anbieter der Immobilie
ohne-makler.net - Immobilien selbst vermarkten
Humboldtstr. 25 A, 21509 Glinde
Privat von Stefan
Dein Ansprechpartner
Kontaktiere den Anbieter schriftlich, es ist keine Telefonnummer hinterlegt.
Online-ID: 2mgq75m
Referenznummer: 412488
Finde Angebote wie dieses
Hier geht es zu unserem Impressum, den Allgemeinen Geschäftsbedingungen, den Hinweisen zum Datenschutz und nutzungsbasierter Online-Werbung.