
Werner und Sabine Sauer KG Fachmakler für Gewerbeimmobilien
Frau Sabine Sauer
030 ···
Nr. anzeigenPreise & Kosten
Kaution
3 Monatsmieten
Provision für Mieter
Provisionsfrei für den Mieter!!!
Warum sehe ich diese Anzeige? – Du siehst diese Anzeige basierend auf Ihrer Navigation auf unserer Website und den Suchkriterien, die du verwendet hast.
Lage
Verkehrsgünstige Lage im Stadtteil Lankwitz nahe den Hauptverkehrsstraßen Kamenzer Damm, sowie der B101 und B96. Das Objekt liegt ebenfalls in der Nähe des Gewerbegebiets Haynauer Straße.
Büro-/Praxisfläche
Kategorie
Bürofläche
Baujahr
1994
Bezug
Nach Vereinbarung
Geschoss
1. Geschoss
Energie & Heizung
Warum sehe ich diese Anzeige? – Du siehst diese Anzeige basierend auf Ihrer Navigation auf unserer Website und den Suchkriterien, die du verwendet hast.
Wärme
Energieausweistyp
Verbrauchsausweis
Gebäudetyp
Nicht-Wohngebäude
Baujahr laut Energieausweis
1994
Wesentliche Energieträger
Erdgas schwer
Gültigkeit
19.07.2018 bis 19.07.2028
Endenergieverbrauch (Wärme)
149,00 kWh/(m²·a)
Weitere Energiedaten
Energieträger
Gas
Details
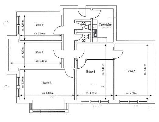
Objektbeschreibung
Die Büroeinheit befindet sich im 1. Obergeschoss eines Bürogebäudes und teilt sich in 5 Räume auf. Zwei der Räume sind nördlich ausgerichtet und zwei westlich. Der fünfte Raum liegt an der Ecke des Gebäudes, wirkt durch einen Erker mit bodentiefen Fenstern sehr ansprechend und hat sowohl eine Nord- als auch eine...
Ausstattung
Die Büroeinheit ist wie folgt ausgestattet:
- größere Teeküche
- CAT-7 Verkabelung
- innenliegender Sonnenschutz
- Teppichboden
- Fußleistenkanäle
Preisinformation
1 Stellplatz
Weitere Informationen
Sonstiges
Bei Bedarf kann ein Stellplatz in der Tiefgarage angemietet werden. In der Straße befinden sich außerdem mehrere Elektroladesäulen.
Stichworte
Tiefgarage vorhanden, Nutzfläche: 162,00 m², Gesamtfläche: 162,00 m², Anzahl der separaten WCs: 2
Online-ID: 2mgqm5l
Referenznummer: 3864#CqXe5N
Finde Angebote wie dieses
Hier geht es zu unserem Impressum, den Allgemeinen Geschäftsbedingungen, den Hinweisen zum Datenschutz und nutzungsbasierter Online-Werbung.