

IFC Immobiliengesellschaft mbH
Herr Paul-Ludwig Blümel
034 ···
Nr. anzeigenPreise & Kosten
Provision für Käufer
Die Provision beträgt 3,5 % vom Kaufpreis (zzgl. der geltenden MwSt.).
Das Haus
Kategorie
Reihenendhaus
Baujahr
1995
Energie & Heizung
Warum sehe ich diese Anzeige? – Du siehst diese Anzeige basierend auf Ihrer Navigation auf unserer Website und den Suchkriterien, die du verwendet hast.
Energieausweistyp
Verbrauchsausweis
Gebäudetyp
Wohngebäude
Baujahr laut Energieausweis
1996
Wesentliche Energieträger
Erdgas
Gültigkeit
bis 11.07.2028
Effizienzklasse
C
Endenergieverbrauch
77,50 kWh/(m²·a)
Weitere Energiedaten
Energieträger
Gas
Heizungsart
offener Kamin, Zentralheizung
Details
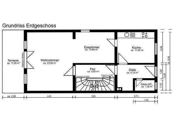
Objektbeschreibung
Raumaufteilung:
Erdgeschoss:
Wohnzimmer mit Essbereich und Zugang zur Terrasse, Küche, Gäste-WC, Diele, Flur
Obergeschoss:
Schlafzimmer, Kinderzimmer, Arbeitszimmer, Bad, Abstellkammer, Flur
Dachgeschoss:
vollständig ausgebaut - 1 großes Zimmer - ca. 53 m²
Unter- /...
Ausstattung
Dach:
ca. 1995 - gedämmt und gedeckt
Fassade:
ca. 1995 - geputzt und gestrichen
Fenster:
ca. 1995 - Holzfenster Meranti mit Jalousien
ca. 2015 - gestrichen und nachjustiert
Türen:
Innentüren Mahagoni - teilweise mit Glasausschnitt
Fußböden:
ca. 2018 - EG: Laminat, Fliesen
ca...
Weitere Informationen
Extras:
- Kinderzimmer, Arbeitszimmer und Schlafzimmer mit französischem Balkon
- Stellplatz und Garage vorhanden
- gepflegtes und angelegtes Grundstück
- derzeit vermietet - Auszug zum 30.04.2026
Erschließung:
Strom, Wasser, Erdgas, Kanalisation, Kabelanschluss, Telefon...
Dokumente
Anbieter der Immobilie

Online-ID: 2mgqn5l
Referenznummer: 2030
Finde Angebote wie dieses
Hier geht es zu unserem Impressum, den Allgemeinen Geschäftsbedingungen, den Hinweisen zum Datenschutz und nutzungsbasierter Online-Werbung.