
Immobilienberatung Rennwanz
Herr Steffen Rennwanz
+49 ···
Nr. anzeigenPreise & Kosten
Kaution
1.785,00
Warum sehe ich diese Anzeige? – Du siehst diese Anzeige basierend auf Ihrer Navigation auf unserer Website und den Suchkriterien, die du verwendet hast.
Lage
Burghausen-Rückmarsdorf ist ein attraktiver Stadtteil im Westen von Leipzig, der sich durch eine harmonische Mischung aus ländlichem Charme und städtischer Anbindung auszeichnet. Die Lage ist geprägt von einer ruhigen Wohnatmosphäre, die ideal für Familien und Naturliebhaber ist.
Der Stadtteil bietet eine Vielzahl von...
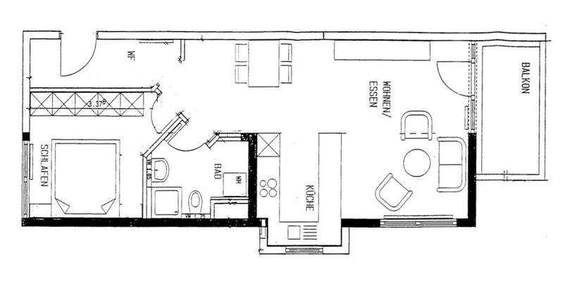
Die Wohnung
Wohnungslage
1. Geschoss
Bezug
01.01.2026
Wohnanlage
Energie & Heizung
Warum sehe ich diese Anzeige? – Du siehst diese Anzeige basierend auf Ihrer Navigation auf unserer Website und den Suchkriterien, die du verwendet hast.
Energieausweistyp
Verbrauchsausweis
Gebäudetyp
Wohngebäude
Gültigkeit
bis 18.04.2031
Effizienzklasse
C
Endenergieverbrauch
90,00 kWh/(m²·a)
Weitere Energiedaten
Energieträger
Gas
Heizungsart
Zentralheizung
Details
Objektbeschreibung
[ Lindenpark 13 - WE 5.20 ]
Wir haben alle Angaben nach bestem Wissen eingepflegt. Bitte haben Sie jedoch dafür Verständnis, dass für alle Angaben und Preise keine Gewähr übernommen wird. Reservierungen sind unverbindlich und gelten immer nur vorbehaltlich der Zustimmung des Eigentümers. Ein Rechtsanspruch auf einen...
Ausstattung
- Bad mit Dusche, ohne Fenster
- Waschmaschinenanschluss im Bad
- offene Küche im Wohnzimmer
- Einbauküche
- Balkon
- Laminat in den Wohnräumen und Fliesen im Flur und Bad
- Außenjalousien
- Lift
- Außenstellplatz (Pflicht! 40,00 € pro Monat)
Preisinformation
1 Stellplatz, Miete: 40,00 EUR
Nettokaltmiete: 595,00 EUR
Weitere Informationen
Sonstiges
Sollten Sie sich das Objekt vor Ort anschauen wollen oder spezielle Fragen zum Objekt haben, stehen wir Ihnen gerne unter der 0341 - 256 493 11 zur Verfügung!
Da wir häufig unterwegs sind, sind wir nicht immer gleich zu erreichen. In diesem Fall können Sie uns eine Nachricht mit Ihrem Namen und Ihrer...
Anbieter der Immobilie
Online-ID: 2mgtl5k
Referenznummer: 225670
Finde Angebote wie dieses
Hier geht es zu unserem Impressum, den Allgemeinen Geschäftsbedingungen, den Hinweisen zum Datenschutz und nutzungsbasierter Online-Werbung.