
TPM GmbH
089 ···
Nr. anzeigenPreise & Kosten
Kaution
2.070,00
Provision für Mieter
provisionsfrei
Warum sehe ich diese Anzeige? – Du siehst diese Anzeige basierend auf Ihrer Navigation auf unserer Website und den Suchkriterien, die du verwendet hast.
Lage
Top Lage direkt im Herzen der Hammer Innenstadt mit ausgezeichneter Infrastruktur!
Die Immobilie liegt fußläufig von der lebendigen Kultur- und Gastroszene entfernt. Im nächsten Umfeld befinden sich alle Geschäfte des täglichen Bedarfs, wie Bäckereien, Lebensmittelläden, Drogerien, Blumengeschäfte, Ärzte aller...
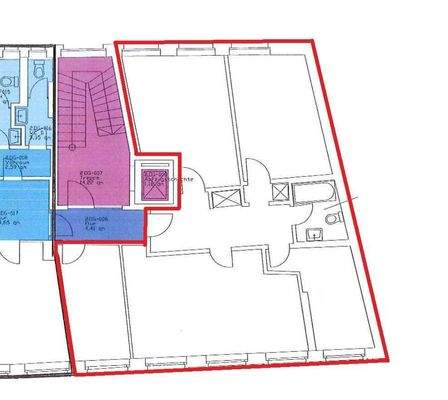
Die Ladenfläche
Kategorie
Verkaufsfläche
Baujahr
1949
Bezug
sofort
Details
Objektbeschreibung
Sehr geehrte Interessentin, sehr geehrter Interessent,
wir bieten Ihnen zur Anmietung eine schöne Bürofläche im 2.OG in der Innenstadt von Hamm an.
Gerne vereinbaren wir mit Ihnen einen Besichtigungstermin um Ihnen die Flächen zu präsentieren und stehen Ihnen bei Fragen selbstverständlich gerne zur Verfügung.
Ausstattung
Bei Vorlage eines guten Konzeptes ist der Eigentümer bereit die Fläche nach Ihren Wünschen umzugestalten.
Die eingebaute Küche kann übernommen werden.
Weitere Informationen
Sonstiges
Bei Interesse können Sie sich wegen einem Besichtigungstermin mit uns in Verbindung setzen.
Stichworte
Gesamtfläche: 87,00 m²
Anbieter der Immobilie
Online-ID: 2mgtt5d
Referenznummer: 5692#XZkCM
Finde Angebote wie dieses
Hier geht es zu unserem Impressum, den Allgemeinen Geschäftsbedingungen, den Hinweisen zum Datenschutz und nutzungsbasierter Online-Werbung.