
Weinhardt Immobilien
Frau Merle Fehrs
004 ···
Nr. anzeigenPreise & Kosten
Provision für Käufer
7,14 % vom Verkaufspreis inkl. MwSt.
Lage
Das Geschäftshaus befindet sich in zentraler Innenstadtlage von Barmstedt, direkt im historischen Stadtkern und nur wenige Schritte vom Rathaus entfernt. Diese hervorragende Position bietet eine hohe Sichtbarkeit und eine stetige Frequenz durch Anwohner, Passanten und Besucher der Stadt - ideale Voraussetzungen für...
Das Haus
Kategorie
Mehrfamilienhaus
Baujahr
1800
Energie & Heizung
Warum sehe ich diese Anzeige? – Du siehst diese Anzeige basierend auf Ihrer Navigation auf unserer Website und den Suchkriterien, die du verwendet hast.
Weitere Energiedaten
Energieträger
Gas
Heizungsart
Zentralheizung
Details
Objektbeschreibung
Dieses Geschäftshaus befindet sich in zentraler Innenstadtlage von Barmstedt, unmittelbar gegenüber dem Rathaus - eine äußerst gefragte und frequentierte Position im Herzen der Stadt.
Das Gebäude steht derzeit vollständig leer und bietet dadurch vielfältige Nutzungsmöglichkeiten. Ob als Renovierungsobjekt mit...
Ausstattung
Besonderheiten:
-Zentrale Innenstadtlage direkt am Rathaus
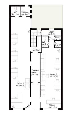
-Zwei separate Ladenflächen mit großen Schaufenstern
-Zusätzliche Fläche im Obergeschoss mit vielseitigen Nutzungsmöglichkeiten
-Historische Bausubstanz mit originalen Details
-Teilmodernisierte Elektrik
-Gas-Zentralheizung
-Kleiner Garten im...
Weitere Informationen
Stichworte
Nutzfläche: 344,00 m², vermietbare Fläche: 344,00 m², Anzahl der separaten WCs: 3, Anzahl Terrassen: 1
Anbieter der Immobilie
Online-ID: 2mgwj5c
Referenznummer: 2491
Finde Angebote wie dieses
Hier geht es zu unserem Impressum, den Allgemeinen Geschäftsbedingungen, den Hinweisen zum Datenschutz und nutzungsbasierter Online-Werbung.