
ohne-makler.net - Immobilien selbst vermarkten
Privat vom Eigentümer
Kontaktiere den Anbieter schriftlich, es ist keine Telefonnummer hinterlegt.
Preise & Kosten
Provision für Käufer
provisionsfrei
Lage
Die Wohnung liegt in einer der beliebtesten Wohngegenden von Karlsruhe - ruhig und zentral zugleich. Einkaufsmöglichkeiten, ÖPNV, Schulen, Kindergärten und Parks sind fußläufig erreichbar. Die Südstadt überzeugt durch ihre gewachsene Infrastruktur und hohe Lebensqualität.
Infrastruktur (im Umkreis von 5 km):
Apotheke...
Die Wohnung
Wohnungslage
3. Geschoss
Bezug
sofort
Wohnanlage
Energie & Heizung
Warum sehe ich diese Anzeige? – Du siehst diese Anzeige basierend auf Ihrer Navigation auf unserer Website und den Suchkriterien, die du verwendet hast.
Energieausweistyp
Verbrauchsausweis
Gebäudetyp
Wohngebäude
Effizienzklasse
B
Endenergieverbrauch
67,00 kWh/(m²·a)
Weitere Energiedaten
Energieträger
Fernwärme
Heizungsart
Fußbodenheizung
Details
Objektbeschreibung
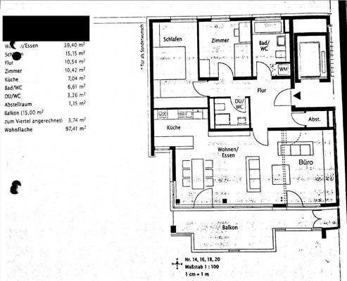
Diese gepflegte und helle 4-Zimmer-Wohnung befindet sich in der Wohnanlage Citypark Karlsruhe-Südstadt in ruhiger, barrierefreier Lage. Sie liegt im 3. Obergeschoss eines Mehrfamilienhauses aus dem Baujahr 2008 und ist über einen Aufzug erreichbar.
Die Wohnfläche beträgt ca. 97,41 m² und bietet eine funktionale...
Ausstattung
Balkon, Keller, Fahrstuhl, Vollbad, Duschbad, Einbauküche, Gäste-WC, Barrierefrei, Parkett
Bemerkungen:
Großzügiger, heller Wohn-/Essbereich mit Zugang zum Süd-Balkon
Moderne Einbauküche im Kaufpreis enthalten
3 weitere Zimmer (flexibel nutzbar als Schlafzimmer, Kinderzimmer, Büro)
Zwei vollwertige...
Preisinformation
1 Tiefgaragenstellplatz
Weitere Informationen
Sonstiges
Heizungsart: Fußbodenheizung
Energieträger: Fernwärme
Die Wohnung wird im Bieterverfahren angeboten.
Der angegebene Preis von 500.000?€ stellt den Startpreis dar.
Bei Interesse laden wir Sie nach vorheriger Absprache zu einer Besichtigung ein. Im Anschluss können Sie ein schriftliches Kaufgebot...
Anbieter der Immobilie
ohne-makler.net - Immobilien selbst vermarkten
Humboldtstr. 25 A, 21509 Glinde
Privat vom Eigentümer
Dein Ansprechpartner
Kontaktiere den Anbieter schriftlich, es ist keine Telefonnummer hinterlegt.
Online-ID: 2mgxt5w
Referenznummer: 417437
Finde Angebote wie dieses
Hier geht es zu unserem Impressum, den Allgemeinen Geschäftsbedingungen, den Hinweisen zum Datenschutz und nutzungsbasierter Online-Werbung.