
ohne-makler.net - Immobilien selbst vermarkten
Privat vom Eigentümer
Kontaktiere den Anbieter schriftlich, es ist keine Telefonnummer hinterlegt.
Preise & Kosten
Provision für Käufer
provisionsfrei
Lage
Wangen am Bodensee - Wo die Schweiz zum Nachbarn wird
Leben, wo andere Urlaub machen - dieser Spruch war selten so treffend wie hier in Wangen. Der malerische Ortsteil der Gemeinde Öhningen liegt direkt am westlichen Bodensee und bietet eine Lebensqualität, die internationale Investoren und anspruchsvolle Mieter...
Das Renditeobjekt
Kategorie
Wohnanlage
Baujahr
2024
Bezug
sofort
Energie & Heizung
Warum sehe ich diese Anzeige? – Du siehst diese Anzeige basierend auf Ihrer Navigation auf unserer Website und den Suchkriterien, die du verwendet hast.
Wärme
Energieausweistyp
Bedarfsausweis
Gebäudetyp
Nicht-Wohngebäude
Endenergiebedarf (Wärme)
49,00 kWh/(m²·a)
Weitere Energiedaten
Energieträger
Elektro
Heizungsart
Fußbodenheizung
Details
Objektbeschreibung
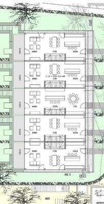
BODENSEE-JUWEL: 5 Premium-Neubau-Reihenhäuser mit Penthouse-Dachterrassen
Provisionsfrei direkt vom Eigentümer - Ihre Chance auf ein außergewöhnliches Investment am westlichen Bodensee!
In privilegierter Lage von Wangen/Öhningen präsentieren wir Ihnen ein exklusives Ensemble aus fünf baugleichen...
Ausstattung
Balkon, Terrasse, Garten, Dachterrasse, Einbauküche, Gäste-WC, Fliesen
Bemerkungen:
Premium-Ausstattung bis ins Detail - Neubauqualität, die begeistert
Diese fünf Reihenhäuser definieren modernes Wohnen neu. Gebaut 2024 nach KfW-55-Standard, vereinen sie Nachhaltigkeit mit Komfort und Ästhetik mit...
Weitere Informationen
Sonstiges
Heizungsart: Fußbodenheizung
Energieträger: Strom
Makleranfragen nicht erwünscht. Nach § 7 UWG sind unaufgeforderte Kontaktaufnahmen durch Makler ohne ausdrückliche Einwilligung des Empfängers verboten!
ohne-makler (OM) ist weder Anbieter noch Vermittler der Immobilie. OM betreibt eine...
Anbieter der Immobilie
ohne-makler.net - Immobilien selbst vermarkten
Humboldtstr. 25 A, 21509 Glinde
Privat vom Eigentümer
Dein Ansprechpartner
Kontaktiere den Anbieter schriftlich, es ist keine Telefonnummer hinterlegt.
Online-ID: 2mgxy5k
Referenznummer: 411625
Finde Angebote wie dieses
Hier geht es zu unserem Impressum, den Allgemeinen Geschäftsbedingungen, den Hinweisen zum Datenschutz und nutzungsbasierter Online-Werbung.