
Konzack Immobilien
Herr Martin Konzack
041 ···
Nr. anzeigenPreise & Kosten
Provision für Käufer
Die vom Käufer und Verkäufer zu zahlende Provision beträgt jeweils 2,9 % des Kaufpreises einschl. der gesetzlich gültigen Mehrwertsteuer. Wir weisen auf unsere Tätigkeit für beide Vertragspartner hin.
Lage
Dieses charmante Einfamilienhaus befindet sich in einer ruhigen Anwohnerstraße in verkehrsberuhigter Lage - unmittelbar am Waldrand und eingebettet in den Eigenheimbereich des Lüneburger Stadtteils Kaltenmoor. Die Nähe zur Innenstadt, die hervorragende Anbindung an das Verkehrsnetz und die öffentlichen Verkehrsmittel sowie...
Das Haus
Kategorie
Bungalow
Baujahr
1976
Energie & Heizung
Warum sehe ich diese Anzeige? – Du siehst diese Anzeige basierend auf Ihrer Navigation auf unserer Website und den Suchkriterien, die du verwendet hast.
Energieausweistyp
Verbrauchsausweis
Gebäudetyp
Wohngebäude
Baujahr laut Energieausweis
1977
Wesentliche Energieträger
Fernwärme
Gültigkeit
14.03.2025 bis 13.03.2035
Effizienzklasse
B
Endenergieverbrauch
58,33 kWh/(m²·a)
Weitere Energiedaten
Haustyp
Massivhaus
Energieträger
Fernwärme
Details
Objektbeschreibung
Dieser außergewöhnliche Bungalow wurde im Jahr 1976 in massiver Bauweise auf einem ca. 630 m² großen Eigentumsgrundstück errichtet - in zweiter Reihe direkt am Rande eines kleinen Wäldchens.
In den vergangenen Jahren wurde das Haus kontinuierlich saniert und modernisiert und präsentiert sich heute in einem gepflegten und...
Ausstattung
Die Flurbereiche, der Windfang und der Wintergarten sind mit Feinsteinzeug-Fliesen aus Marmor ausgestattet, passend zur gewendelten Marmor-Treppe, die die Ebenen miteinander verbindet. Im Wohnzimmer und im Essbereich ist ein Designboden in Holzoptik verlegt. Die Zimmer auf beiden Ebenen sind mit Teppich ausgelegt, alle...
Preisinformation
1 Garagenstellplatz
Weitere Informationen
Sonstiges
Besichtigung nach Vereinbarung
Stichworte
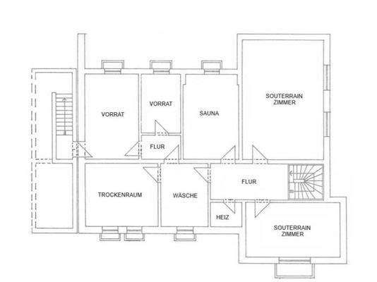
Sonstiges: Keller als Wohnraum nutzbar
Anbieter der Immobilie
Konzack Immobilien
Ritterstraße 51, 21335 Lüneburg
Online-ID: 2mgzb5q
Referenznummer: HK 25-40 (1/43)
Finde Angebote wie dieses
Hier geht es zu unserem Impressum, den Allgemeinen Geschäftsbedingungen, den Hinweisen zum Datenschutz und nutzungsbasierter Online-Werbung.