

Grossmann & Berger GmbH
Herr Thomas Schlichtegroll
+49 ···
Nr. anzeigenPreise & Kosten
Provision für Käufer
3,57 % inkl. MwSt.
Lage
Die Doppelhaushälfte befindet sich in einer attraktiven und ruhigen Wohngegend in Ellerbek, einer charmanten Gemeinde, die durch ihre Nähe zur Natur und zugleich guter Erreichbarkeit der Stadt besticht. Die Lage bietet ideale Voraussetzungen für Familien, da sowohl ein Kindergarten als auch eine Grundschule nur etwa 1,4...
Das Haus
Kategorie
Doppelhaushälfte
Baujahr
1972
Bezug
nach Vereinbarung
Energie & Heizung
Warum sehe ich diese Anzeige? – Du siehst diese Anzeige basierend auf Ihrer Navigation auf unserer Website und den Suchkriterien, die du verwendet hast.
Energieausweistyp
Bedarfsausweis
Gebäudetyp
Wohngebäude
Baujahr laut Energieausweis
2018
Wesentliche Energieträger
GAS
Gültigkeit
bis 29.10.2035
Effizienzklasse
F
Endenergiebedarf
161,49 kWh/(m²·a)
Weitere Energiedaten
Energieträger
Gas
Details
Objektbeschreibung
Diese gepflegte Doppelhaushälfte in der idyllischen Gemeinde Ellerbek bietet Ihnen und Ihrer Familie großzügigen Wohnkomfort auf zwei Etagen. Sie wurde im Jahre 1972 in massiver Bauweise auf einem ca. 1.210 m² großen Grundstück errichtet und im Jahre 1975 mit einem Anbau erweitert. Mit einer Wohnfläche von ca. 223 m² und...
Ausstattung
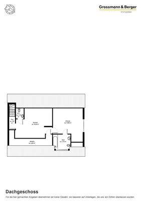
Im Erdgeschoss stehen den Bewohnern ein ca. 48 m² großes Wohnzimmer, ein ganzes Zimmer, drei halbe Zimmer, zwei Badezimmer sowie eine Küche zur Verfügung. Von dem Wohnzimmer aus gelangen Sie über eine großzügige Terrasse in den geschmackvoll angelegten Garten. Bei schönem Wetter können hier ein Pool sowie ein Saunahaus...
Preisinformation
2 Garagenstellplätze
Weitere Informationen
Stichworte
Nutzfläche: 26,25 m², Anzahl der Schlafzimmer: 5, Anzahl der Badezimmer: 4, Anzahl der separaten WCs: 1, Anzahl Terrassen: 1, Bundesland: Schleswig-Holstein, Distanz zum Kindergarten: 1.40, Distanz zur Grundschule: 1.40, Distanz zur Realschule: 3.10, Distanz zur nächsten Einkaufsmöglichkeit: 0.80, Distanz zum...
Anbieter der Immobilie

Online-ID: 2mgzm5g
Referenznummer: WB 7431
Finde Angebote wie dieses
Hier geht es zu unserem Impressum, den Allgemeinen Geschäftsbedingungen, den Hinweisen zum Datenschutz und nutzungsbasierter Online-Werbung.