
Ines Thüne Immobilien
Frau Ines Thüne
036 ···
Nr. anzeigenPreise & Kosten
Provision für Käufer
3,57% inkl. MwSt.
Das vom Käufer zu zahlende Maklerhonorar beträgt 3,57% (inkl. MwSt.) vom Kaufpreis und ist mit Unterzeichnung des notariellen Kaufvertrages zur Zahlung fällig!
Lage
Die Doppelhaushälfte, welche sich auf einem 643m² großem Grundstück, am Ortsrand von Mühlhausen befindet, bietet Ihnen durch die optimale Lage einiges an Vorzügen. So ist alles was Sie für das alltägliche Leben brauchen, fußläufig erreichbar. Egal ob Schulen, Kindergärten, Supermärkte, ärztliche sowie gastronomische...
Das Haus
Kategorie
Doppelhaushälfte
Baujahr
1936
Bezug
nach Absprache
Energie & Heizung
Warum sehe ich diese Anzeige? – Du siehst diese Anzeige basierend auf Ihrer Navigation auf unserer Website und den Suchkriterien, die du verwendet hast.
Energieausweistyp
Verbrauchsausweis
Gebäudetyp
Wohngebäude
Baujahr laut Energieausweis
1936
Wesentliche Energieträger
Gas
Gültigkeit
09.09.2024 bis 08.09.2034
Effizienzklasse
H
Endenergieverbrauch
407,79 kWh/(m²·a)
Weitere Energiedaten
Haustyp
Massivhaus
Energieträger
Gas
Heizungsart
Etagenheizung
Details
Objektbeschreibung
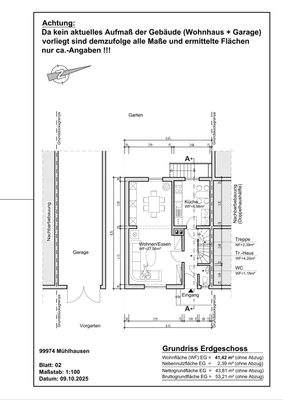
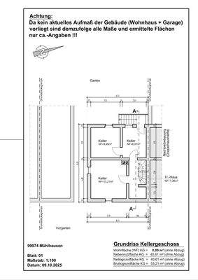
Zum Verkauf steht eine Doppelhaushälfte mit Garage in beliebter Wohnlage von Mühlhausen (Sachsensiedlung), welches im Jahre 1936 auf einem großen Grundstück von 643 m² Fläche errichtet wurde. Das massiv gebaute Wohnhaus verfügt im Erdgeschoss über Wohnzimmer, Küche und WC. Im Obergeschoss befinden sich 2 weitere Schlafzimmer...
Ausstattung
+Baujahr ca.1936
+1995 Teilsanierung (Fenster, Türen, Dach, Elektrik, Heizung, Sanitär)
+Strom/ Wasser/ Abwasser/ Gas liegen an
+Brennwerttherme (Bj. 2016)
+1 Vollgeschosse + 1 Dachgeschoss + Vollkeller + Garage + Garten
+Fenster 2-fach verglast
+Fußböden: Dielen, Teppich, Fliesen
+1x Bad mit Fenster, WC...
Weitere Informationen
Sonstiges
Provision:
Das vom Käufer zu zahlende Maklerhonorar beträgt 3,57% (inkl. MwSt.) vom Kaufpreis und ist mit Unterzeichnung des notariellen Kaufvertrages zur Zahlung fällig!
Alle Angaben sind ohne Gewähr und basieren ausschließlich auf Informationen, die uns von unserem Auftraggeber zur Verfügung gestellt...
Anbieter der Immobilie
Online-ID: 2mgzq5a
Referenznummer: 7562#zB4KJk
Finde Angebote wie dieses
Hier geht es zu unserem Impressum, den Allgemeinen Geschäftsbedingungen, den Hinweisen zum Datenschutz und nutzungsbasierter Online-Werbung.