
RUHR REAL GmbH
Herr Samuel Kruse
+49 ···
Nr. anzeigenPreise & Kosten
nicht in Warmmiete enthalten
Provision für Mieter
provisionsfrei
Warum sehe ich diese Anzeige? – Du siehst diese Anzeige basierend auf Ihrer Navigation auf unserer Website und den Suchkriterien, die du verwendet hast.
Lage
Das Büro befindet sich im beliebten Südviertel, der Hauptbahnhof ist in 6 Minuten zu Fuß oder mit der Straßenbahn bzw. Bus mit einem Stopp erreichbar. Die A40 ist nah, ebenso die Auffahrt zur A52 Richtung Düsseldorf. Die Straßenbahnhaltestelle "Kronprinzenstraße" ist 100m entfernt.
Hotels in der Nähe: Sheraton Hotel...
Büro-/Praxisfläche
Kategorie
Bürofläche
Baujahr
1972/2023
Bezug
sofort
Details
Objektbeschreibung
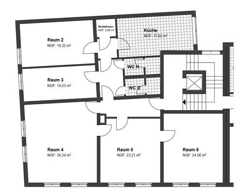
Der Haupteingang des Gebäudes liegt auf der ruhigen Gärtnerstraße unweit der Kronprinzenstraße. Die Büroräume werden durch das zentrale Treppenhaus mit Aufzug erreicht. Durch eine weiße Tür betreten Sie den mit Laminat mit heller Holzoptik ausgelegten Eingangsbereich. Die Wände werden weiß gestrichen übergeben. Im...
Ausstattung
. Bodenbelag: Laminat-, Vinylboden
. Verkabelung: CAT-5-Verkabelung
. Sonnenschutz: außenliegend, elektrisch
. Teeküche: voll ausgestattet
. Beleuchtung: Rasterleuchten
. Aufzug: Personenaufzug
. Heizungsart: Zentralheizung
. Letzte Modernisierung: 2020
Die Ausstattung ist flexibel und kann bei...
Preisinformation
Nettokaltmiete: 9,50 EUR
Weitere Informationen
Sonstiges
Es gelten ausschließlich unsere AGB (www.ruhr-real.de/agb). Wir möchten Sie darauf hinweisen, dass die Angaben ausschließlich auf den uns vom Eigentümer übermittelten Unterlagen und Informationen basieren. Für Richtigkeit und Vollständigkeit übernehmen wir keine Gewähr. Zwischenvermietung vorbehalten.
Anbieter der Immobilie

RUHR REAL GmbH
Holsterhauser Platz 2, 45147 Essen
Online-ID: 2mh365h
Referenznummer: 1342/E5
Finde Angebote wie dieses
Hier geht es zu unserem Impressum, den Allgemeinen Geschäftsbedingungen, den Hinweisen zum Datenschutz und nutzungsbasierter Online-Werbung.