WZA Management GmbH
Herr Willibald Zabold
091 ···
Nr. anzeigenPreise & Kosten
Provision für Käufer
provisionsfrei
Abschreibung/Anlage
als Kapitalanlage geeignet
Lage
Das geplante Neubau MFH befindet sich in Nürnberg-Fischbach, einem der gefragtesten Stadtteile im Südosten Nürnbergs. Fischbach zeichnet sich durch seine grüne und ruhige Wohnumgebung aus, die dennoch eine hervorragende Anbindung an die Innenstadt und die umliegenden Regionen bietet.
In unmittelbarer Umgebung finden...
Die Wohnung
Wohnungslage
2. Geschoss (Erdgeschoss)
Bezug
1.8.2027
Wohnanlage
Energie & Heizung
Warum sehe ich diese Anzeige? – Du siehst diese Anzeige basierend auf Ihrer Navigation auf unserer Website und den Suchkriterien, die du verwendet hast.
Energieausweistyp
Bedarfsausweis
Gebäudetyp
Wohngebäude
Baujahr laut Energieausweis
2026
Wesentliche Energieträger
Strom
Gültigkeit
01.05.2024 bis 01.09.2034
Effizienzklasse
A+
Endenergiebedarf
15,00 kWh/(m²·a)
Weitere Energiedaten
Energieträger
Elektro
Haustyp
KfW 40
Heizungsart
Fußbodenheizung, Luft-/Wasser-Wärmepumpe, Zentralheizung
Details
Objektbeschreibung
Wohnen in Nürnberg-Fischbach, hervorragende Lage mit optimaler Anbindung und guter Infrastruktur. Gewachsenes Wohngebiet mit viel Grün und Nähe zur Natur.
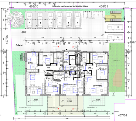
Auf dem 1000 m² großen Grundstück entsteht ein individuelles MFH mit 8 Wohnungen, 2 Garagen, 3 Carports und 3 Stellplätzen.
Derzeit sind noch folgende...
Ausstattung
Ausstattung
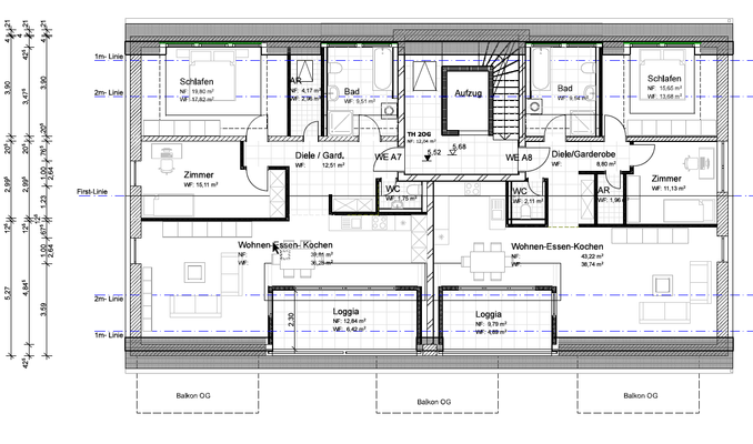
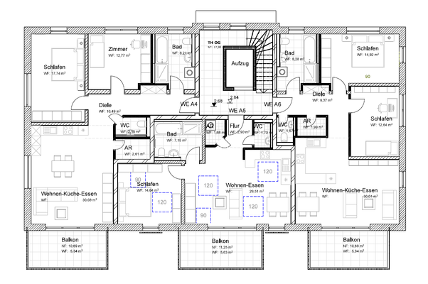
- 6x3- und 2x2 Zimmer-Wohnungen
- Wohnflächen von ca. 63 m² - 102 m²
- Großzügig und praktikabel geschnittene Grundrisse
- Bad mit Fenster, Gäste-WC und Abstellraum in der Wohnung
- Lichtdurchflutete Räume mit bodentiefen Fenstern
- Jede Wohneinheit mit Balkon/Loggia oder Terrasse/Garten und...
Weitere Informationen
Besichtigungstermine
Bitte verwenden Sie, aus organisatorischen Gründen, für die 1. Kontaktaufnahme die Immowelt - Kontaktfunktion.
Bei Interesse vereinbaren wir gerne zeitnah einen gemeinsamen Vor-Ort-Termin.
Stichworte
Zustand: Erstbezug, gepflegt
Sonstiges: EDV-Verkabelung
Dokumente
Anbieter der Immobilie
WZA Management GmbH
Äusserer Schloßplatz 3, 90592 Schwarzenbruck
Online-ID: 2mh425c
Finde Angebote wie dieses
Hier geht es zu unserem Impressum, den Allgemeinen Geschäftsbedingungen, den Hinweisen zum Datenschutz und nutzungsbasierter Online-Werbung.