
RE/MAX Lörrach, Müllheim, Freiburg
Herr Alexander Maier
004 ···
Nr. anzeigenPreise & Kosten
Provision für Käufer
3,57 % inkl. gesetzl. MwSt. (19%) inkl. MwSt.
Das Haus
Kategorie
Mehrfamilienhaus
Baujahr
1883
Energie & Heizung
Warum sehe ich diese Anzeige? – Du siehst diese Anzeige basierend auf Ihrer Navigation auf unserer Website und den Suchkriterien, die du verwendet hast.
Energieausweistyp
Bedarfsausweis
Gebäudetyp
Wohngebäude
Baujahr laut Energieausweis
2002
Wesentliche Energieträger
ERDGAS_SCHWER
Gültigkeit
bis 27.06.2028
Effizienzklasse
D
Endenergiebedarf
210,00 kWh/(m²·a)
Weitere Energiedaten
Energieträger
Gas
Heizungsart
Etagenheizung
Details
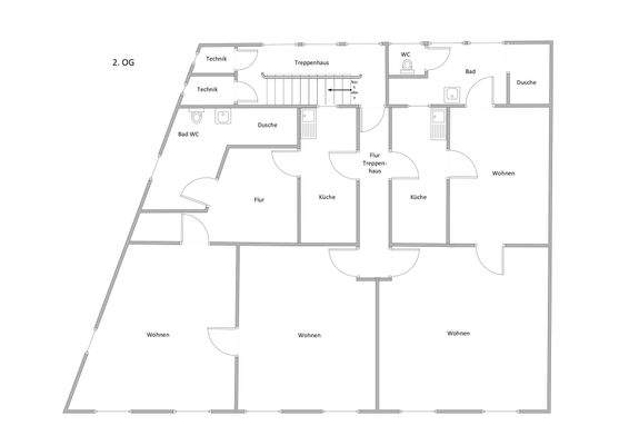
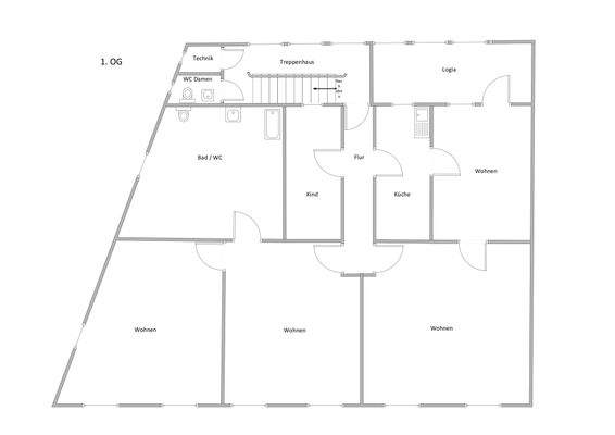
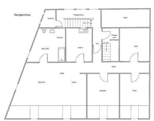
Objektbeschreibung
Objektbeschreibung:
Dieses charmante Mehrfamilienhaus wurde im Jahr 1883 in solider Massivbauweise mit Holzbalkendecken und einem Satteldach errichtet. Es besticht durch seinen historischen Charakter und verfügt über einen beeindruckenden Gewölbekeller. Im Zeitraum von 2003 bis 2007 wurden umfangreiche Sanierungs- und...
Preisinformation
Soll-Mieteinnahmen pro Jahr: 367.200,00 EUR
Weitere Informationen
Stichworte
Nutzfläche: 39,00 m², Gesamtfläche: 448,00 m², vermietbare Fläche: 448,00 m², Anzahl der Schlafzimmer: 10, Anzahl der Badezimmer: 5, Anzahl der separaten WCs: 4, Anzahl der Wohneinheiten: 5, Bundesland: Baden-Württemberg, 4 Etagen, modernisiert: 2011, modernisiert
Anbieter der Immobilie
RE/MAX Lörrach, Müllheim, Freiburg
Tumringer Straße 284, 79539 Lörrach
Online-ID: 2mh495v
Referenznummer: 1067-744-1-AM
Finde Angebote wie dieses
Hier geht es zu unserem Impressum, den Allgemeinen Geschäftsbedingungen, den Hinweisen zum Datenschutz und nutzungsbasierter Online-Werbung.