
ohne-makler.net - Immobilien selbst vermarkten
Privat von Diana Ilechko
017 ···
Nr. anzeigenPreise & Kosten
Provision für Käufer
provisionsfrei
Lage
Der Eschenweg in der ehemaligen "NATO-Siedlung" im Osten Bambergs ist mehr als nur eine Adresse - er ist ein Ort zum Ankommen und Wohlfühlen. Die ruhige Wohnlage, die von viel Grün und einer harmonischen Nachbarschaft geprägt ist, hat sich längst als beliebter Rückzugsort für junge Familien etabliert.
Hier können...
Das Haus
Kategorie
Reihenmittelhaus
Baujahr
2000
Bezug
nach Absprache
Energie & Heizung
Warum sehe ich diese Anzeige? – Du siehst diese Anzeige basierend auf Ihrer Navigation auf unserer Website und den Suchkriterien, die du verwendet hast.
Energieausweistyp
Verbrauchsausweis
Gebäudetyp
Wohngebäude
Effizienzklasse
B
Endenergieverbrauch
65,00 kWh/(m²·a)
Weitere Energiedaten
Energieträger
Gas
Heizungsart
Zentralheizung
Details
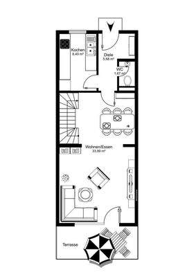
Objektbeschreibung
Dieses gepflegte Reihenmittelhaus aus dem Jahr 2000 liegt in der ruhigen und beliebten ehemaligen NATO-Siedlung - ein familienfreundlicher Ort mit starkem Nachbarschaftsgefühl.
Im Erdgeschoss erwartet Sie ein helles, ca. 34 m² großes Wohnzimmer mit Zugang zur sonnigen West-Terrasse - ideal für entspannte Abende und...
Ausstattung
Terrasse, Garten, Keller, Vollbad, Einbauküche, Gäste-WC, Parkett, Fliesen
Preisinformation
2 Stellplätze
Weitere Informationen
Sonstiges
Heizungsart: Zentralheizung
Energieträger: Gas
Makleranfragen nicht erwünscht. Nach § 7 UWG sind unaufgeforderte Kontaktaufnahmen durch Makler ohne ausdrückliche Einwilligung des Empfängers verboten!
ohne-makler (OM) ist weder Anbieter noch Vermittler der Immobilie. OM betreibt eine Plattform...
Anbieter der Immobilie
ohne-makler.net - Immobilien selbst vermarkten
Humboldtstr. 25 A, 21509 Glinde
Online-ID: 2mh4m5l
Referenznummer: 412264
Finde Angebote wie dieses
Hier geht es zu unserem Impressum, den Allgemeinen Geschäftsbedingungen, den Hinweisen zum Datenschutz und nutzungsbasierter Online-Werbung.