

VIA-FINANZ GMBH
Herr René Krämer
037 ···
Nr. anzeigenPreise & Kosten
Provision für Käufer
3,57% inkl. MwSt.
Lage
Das Zentrum ist der zentral gelegene Stadtteil der Stadt Chemnitz, der sich über die gesamte Innenstadt erstreckt. Hier haben ca. 11.823 Menschen ihr zu Hause. In nur wenigen Minuten erreicht man die Innenstadt zu Fuß, mit dem Fahrrad, mit dem öffentlichen Nahverkehr oder dem Auto. Die naheliegenden Erholungsmöglichkeiten wie...
Das Renditeobjekt
Kategorie
Mehrfamilienhaus
Baujahr
1908
Frei ab
vermietet
Energie & Heizung
Warum sehe ich diese Anzeige? – Du siehst diese Anzeige basierend auf Ihrer Navigation auf unserer Website und den Suchkriterien, die du verwendet hast.
Wärme
Energieausweistyp
Verbrauchsausweis
Gebäudetyp
Nicht-Wohngebäude
Gültigkeit
bis 09.04.2029
Endenergieverbrauch (Wärme)
120,70 kWh/(m²·a)
Weitere Energiedaten
Energieträger
Gas
Heizungsart
Zentralheizung
Details
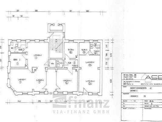
Objektbeschreibung
Zum Verkauf steht ein charmantes Mehrfamilienhaus aus dem Jahr 1908 in Chemnitz-Zentrum, gelegen auf einem großzügigen 430 m² Grundstück. Die Immobilie vereint gewerblich und wohnlich nutzbare Flächen auf insgesamt 1.048 m² und bietet derzeit 16 Einheiten, wovon 15 vermietet sind. Die monatliche Kaltmieteinnahme beträgt...
Ausstattung
- 5.052,22 € Kaltmieteinnahmen mtl.
- 16 Gewerbe- und Wohneinheiten
- 15 Einheiten vermietet
- Keller
Preisinformation
Ist-Mieteinnahmen pro Jahr: 60.626,64 EUR
Weitere Informationen
Sonstiges
Alle Angaben sind ohne Gewähr und basieren ausschließlich auf Informationen, die uns vom Auftraggeber zur Verfügung gestellt wurden. Wir übernehmen trotz größter Sorgfalt keine Gewähr für die Vollständigkeit, Richtigkeit und Aktualität der Angaben. Das Gebäude wird verkauft wie es steht und liegt, ohne Inventar...
Anbieter der Immobilie

Online-ID: 2mh5d56
Referenznummer: 8436
Finde Angebote wie dieses
Hier geht es zu unserem Impressum, den Allgemeinen Geschäftsbedingungen, den Hinweisen zum Datenschutz und nutzungsbasierter Online-Werbung.