
Grethe Schellmann Immobilienvermarktungs GmbH
Frau Vassilia Tsoufianis
004 ···
Nr. anzeigenPreise & Kosten
Provision für Käufer
3,57 % inkl. MwSt.
Lage
Das Haus befindet sich in einer ruhigen, aber hervorragend angebundenen Lage im charmanten Veitshöchheim, einer beliebten Gemeinde im Landkreis Würzburg. Die Kombination aus idyllischer Natur und guter Infrastruktur macht die Gegend ideal für Familien, Berufspendler und Naturliebhaber.
Die Anbindung an Würzburg ist...
Das Haus
Kategorie
Doppelhaushälfte
Baujahr
1989
Bezug
sofort
Energie & Heizung
Warum sehe ich diese Anzeige? – Du siehst diese Anzeige basierend auf Ihrer Navigation auf unserer Website und den Suchkriterien, die du verwendet hast.
Energieausweistyp
Bedarfsausweis
Gebäudetyp
Wohngebäude
Baujahr laut Energieausweis
2015
Wesentliche Energieträger
GAS
Gültigkeit
bis 12.06.2035
Effizienzklasse
E
Endenergiebedarf
152,98 kWh/(m²·a)
Weitere Energiedaten
Energieträger
Gas
Heizungsart
Zentralheizung
Details
Objektbeschreibung
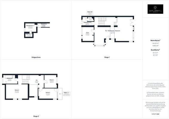
Sie suchen eine Immobilie mit außergewöhnlicher Architektur in beliebter Lage von Veitshöchheim - dann könnte diese Doppelhaushälfte vielleicht Ihr neues Zuhause werden. Die Immobilie ist aus dem Baujahr 1989 und überzeugt sowohl von Innen, als auch von Außen.
Im Inneren erwarten Sie ca. 195 m² Wohnfläche, verteilt...
Ausstattung
*** Objekt - Eckdaten ***
- Baujahr: 1989
- Objekt-Art: Doppelhaushälfte + Einliegerwohnung
- Wohneinheiten: 2
- Grundstück: ca. 232 m²
- Etagen: 6 in Splitlevel (UG, EG, OG)
- Garten: Süd/Ost
- Terrasse: Süd/Ost
- Balkon: Süd/West
- Garage: 2 (Duplex)
- Stellplatz: 1
*** Ausstattung -...
Preisinformation
1 Stellplatz
2 Tiefgaragenstellplätze
Weitere Informationen
Sonstiges
Für weitere Bilder und Grundrisse der Immobilie fordern Sie direkt das Exposé an! Wir freuen uns auf Ihre Anfrage.
Gerne stehen wir Ihnen für exklusive Besichtigungstermine zur Verfügung. Termine hierfür können Sie jederzeit schriftlich per E-Mail oder per Telefon mit uns vereinbaren.
Die...
Anbieter der Immobilie
Online-ID: 2mh6y5d
Referenznummer: 883
Finde Angebote wie dieses
Hier geht es zu unserem Impressum, den Allgemeinen Geschäftsbedingungen, den Hinweisen zum Datenschutz und nutzungsbasierter Online-Werbung.