

Immobilien Fair & Freundlich
Herr Holger Freerks
+49 ···
Nr. anzeigenPreise & Kosten
Provision für Käufer
2,98 % Käuferprovision inkl. Mwst., verdient und fällig bei Beurkundung
Lage
Die Immobilie befindet sich in Hesel in Ostfriesland, einem gewachsenen und familienfreundlichen Ort mit sehr guter Infrastruktur. Sämtliche Einrichtungen des täglichen Bedarfs sind direkt vor Ort vorhanden und teilweise bequem fußläufig erreichbar. Dazu zählen Einkaufsmöglichkeiten, Bäckereien, Ärzte, Apotheken sowie Schulen...
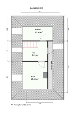
Das Haus
Kategorie
Bungalow
Baujahr
1969
Energie & Heizung
Warum sehe ich diese Anzeige? – Du siehst diese Anzeige basierend auf Ihrer Navigation auf unserer Website und den Suchkriterien, die du verwendet hast.
Energieausweistyp
Bedarfsausweis
Gebäudetyp
Wohngebäude
Baujahr laut Energieausweis
1969
Wesentliche Energieträger
Öl
Gültigkeit
14.12.2025 bis 14.12.2035
Effizienzklasse
E
Endenergiebedarf
151,80 kWh/(m²·a)
Weitere Energiedaten
Haustyp
Massivhaus
Energieträger
Öl
Details
Objektbeschreibung
Dieser äußerst gepflegte Bungalow befindet sich in Hesel in zentrale Lage an einer Hauptstraße. Trotz der verkehrsgünstigen Anbindung herrscht im Inneren des Hauses eine bemerkenswerte Ruhe, die ein entspanntes und angenehmes Wohnen ermöglicht. Die durchdachte Bauweise, die geschützte Ausrichtung der Wohnräume sowie der...
Ausstattung
Ausstattungsmerkmale:
. Bodenbeläge aus Laminat, Fliesen und teilweise Kork
. Küche im Kaufpreis enthalten
. Badezimmer mit Dusche, WC, Fenster und Fußbodenerwärmung
. Separates Gäste-WC
. Große, überdachte Terrasse mit manueller Markise
. Doppelgarage mit viel Platz für PKW, Fahrräder und Gartengeräte
...
Weitere Informationen
Sonstiges
Für den attraktiven Preis von nur 269.000,00 Euro könnte dieses Haus nach Vereinbarung Ihr neues Domizil werden.
Die Vermittlungsgebühr beträgt 2,98% des Kaufpreises (inklusive 19% Mehrwertsteuer) und wird vom Käufer nach der notariellen Beurkundung entrichtet. Ein identischer Maklervertrag wurde ebenfalls...
Anbieter der Immobilie

Online-ID: 2mh7d5q
Referenznummer: FF 301 BA 01 (1/2120)
Finde Angebote wie dieses
Hier geht es zu unserem Impressum, den Allgemeinen Geschäftsbedingungen, den Hinweisen zum Datenschutz und nutzungsbasierter Online-Werbung.