

M. Kock Immobilien GmbH
Frau Maike Kock
044 ···
Nr. anzeigenPreise & Kosten
Provision für Käufer
3,57% des Verkaufspreis inkl. 19% MwSt.
Lage
Die Immobilie befindet sich in ruhiger Sackgassenlage in der Ortschaft Ocholt in der Gemeinde Westerstede im Landkreis Ammerland an der Grenze zu Ostfriesland. Die einzigartige Landschaft des Ammerlandes ist geprägt durch viele Wasserläufe und parkähnliche Anlagen. Eine ausgezeichnete Infrastruktur mit diversen...
Das Haus
Kategorie
Einfamilienhaus
Baujahr
2002
Energie & Heizung
Warum sehe ich diese Anzeige? – Du siehst diese Anzeige basierend auf Ihrer Navigation auf unserer Website und den Suchkriterien, die du verwendet hast.
Weitere Energiedaten
Energieträger
Gas
Heizungsart
Zentralheizung
Details
Objektbeschreibung
Nahe des bekannten Zwischenahner Meeres lädt diese Immobilie zum Wohnen ein. Das Objekt wurde ca. 2002 auf einem pflegeleichtem Grundstück erbaut. In wenigen Minuten erreicht man u.a. die Nahversorgung und den Ocholter Bahnhof.
Auf einer Ebene findet man alle Räumlichkeiten vor. Im großzügigem Küchenraum finden viele...
Ausstattung
Bad: mit Dusche, Badewanne und Handtuchtrockner, Gäste Wc
Böden: Kunststoff, Fliesen, Stäbchenparkett im Wohnzimmer
Heizung: mit Warmwasserspeicher
Fußbodenheizung in Küche und Bad
Zwischendecke: Holzbalkendecke
Außenbereich: Carport, Terrasse, Holzgesims
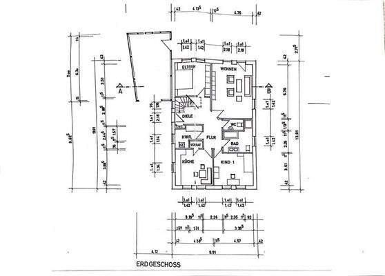
Raumaufteilung:
Flur...
Preisinformation
1 Carportplatz
Weitere Informationen
Sonstiges
Die Objektangaben beruhen auf Angaben des Eigentümers und auf den uns vorliegenden
Unterlagen. Für die Richtigkeit, Vollständigkeit und Aktualität dieser Angaben wird keine Haftung übernommen, ebenso nicht für evtl. erforderliche Genehmigungen. Zwischenverkauf bleibt vorbehalten. Alle Maßangaben sind Ca. Werte...
Anbieter der Immobilie

M. Kock Immobilien GmbH
Hauptstrasse 29a, 26676 Elisabethfehn

Online-ID: 2mh8654
Referenznummer: 55 130/25
Finde Angebote wie dieses
Hier geht es zu unserem Impressum, den Allgemeinen Geschäftsbedingungen, den Hinweisen zum Datenschutz und nutzungsbasierter Online-Werbung.