
Inseriert auf 123provisionsfrei.de
Privater Anbieter rcMUE
Kontaktiere den Anbieter schriftlich, es ist keine Telefonnummer hinterlegt.
Preise & Kosten
Provision für Käufer
provisionsfrei
Lage
Die Eigentumswohnung liegt in einer ruhigen und dennoch sehr zentralen Wohnlage im Ortsteil Graben. Die Gemeinde Graben-Neudorf zeichnet sich durch ihre hervorragende Infrastruktur aus.
Naherholung: Die Nähe zum Hardtwald und Badesee Grosseichseen bietet ideale Möglichkeiten zur Naherholung.
Versorgung: Alle...
Wohnanlage
Energie & Heizung
Warum sehe ich diese Anzeige? – Du siehst diese Anzeige basierend auf Ihrer Navigation auf unserer Website und den Suchkriterien, die du verwendet hast.
Energieausweistyp
Verbrauchsausweis
Gebäudetyp
Wohngebäude
Baujahr laut Energieausweis
1982
Wesentliche Energieträger
Öl
Gültigkeit
06.05.2019 bis 07.05.2029
Effizienzklasse
C
Endenergieverbrauch
100,00 kWh/(m²·a)
Weitere Energiedaten
Energieträger
Öl
Heizungsart
Zentralheizung
Details
Objektbeschreibung
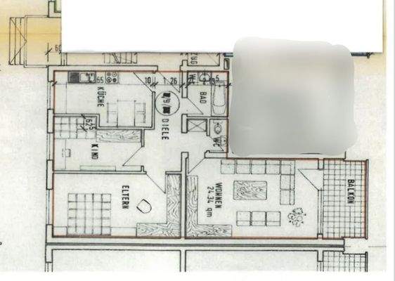
Wir bieten unsere gepflegte und 2017 kernsanierte 3-Zimmer-Eigentumswohnung in zentraler Lage von Graben-Neudorf (Ortsteil Graben) zum Verkauf an. Mit ca. 80 m2 Wohnfläche im 2. Obergeschoss (mit Aufzug) ist die Wohnung ideal für Familien. Wir verkaufen sie aufgrund veränderter Bedürfnisse und haben uns hier als vierköpfige...
Ausstattung
Die Wohnung präsentiert sich in einem neuwertigen und stilvollen Top-Zustand, da 2017 eine umfassende Sanierung erfolgte.
?Design & Optik: Neue Fenster (2017), dunkler Laminat, stilvolle Rauputzwände, moderne Spots in Flur/Bädern und eine beeindruckende Schieferoptik-Akzentwand im Wohnzimmer.
?Küche: Sehr...
Preisinformation
1 Stellplatz
Weitere Informationen
Sonstiges
Bezug: Nach Absprache.
?Besichtigungen: Aufgrund unserer Vollzeitbeschäftigung bitten wir um Verständnis, dass Besichtigungstermine ausschließlich sonntags vereinbart werden können.
Art des Ausweises: Verbrauchsausweis
?Endenergiekennwert: 99,9 kWh
?Energieeffizienzklasse: C...
Anbieter der Immobilie
Inseriert auf 123provisionsfrei.de
Helmstedter Str. 16, 38448 Wolfsburg
Privater Anbieter rcMUE
Dein Ansprechpartner
Kontaktiere den Anbieter schriftlich, es ist keine Telefonnummer hinterlegt.
Online-ID: 2mh875m
Referenznummer: 74503326-1#RuxkW
Finde Angebote wie dieses
Hier geht es zu unserem Impressum, den Allgemeinen Geschäftsbedingungen, den Hinweisen zum Datenschutz und nutzungsbasierter Online-Werbung.