
Immopartner Stefan Sagraloff e. K. Immobilienmakler Nürnberg
Frau Janine Wittmann
004 ···
Nr. anzeigenPreise & Kosten
Provision für Käufer
3,57 % vom Verkaufspreis inkl. MwSt., vom Käufer zu zahlen bei notarieller Beurkundung.
Lage
MAKROLAGE
Die Stadt Nürnberg ist die zweitgrößte Stadt Bayerns mit einer Einwohnerzahl von rund 530.000. Zusammen mit den Nachbarstädten Fürth, Erlangen und Schwabach bildet sie die Metropolregion Nürnberg, die ca. 2 Millionen Einwohner umfasst. Diese Region zählt zu den kulturell und wirtschaftlich starken Regionen in...
Das Haus
Kategorie
Mehrfamilienhaus
Baujahr
1907
Derzeitige Nutzung
vermietet
Energie & Heizung
Warum sehe ich diese Anzeige? – Du siehst diese Anzeige basierend auf Ihrer Navigation auf unserer Website und den Suchkriterien, die du verwendet hast.
Energieausweistyp
Bedarfsausweis
Gebäudetyp
Wohngebäude
Baujahr laut Energieausweis
1907
Wesentliche Energieträger
FERN
Gültigkeit
bis 12.07.2028
Effizienzklasse
F
Endenergiebedarf
183,00 kWh/(m²·a)
Weitere Energiedaten
Haustyp
Massivhaus
Energieträger
Fernwärme
Heizungsart
Zentralheizung
Details
Objektbeschreibung
Liebe Besucherin, lieber Besucher,
Sie sind auf der Suche nach einem passenden Mehrfamilienhaus als Renditeobjekt / Kapitalanlage?
Viele unserer anzubietenden Mehrfamilienhäuser präsentieren wir nicht im Internet, sondern senden diese gleich ausgewählten Stammkunden. Wenn auch Sie zum exklusiven Kreis...
Ausstattung
* Historisches Mehrfamiliienhaus
* Altbau (Bj. ca. 1907)
* Vorderhaus mit Innenhof und Rückgebäude
* Sehr gefragter Stadtteil in der Nürnberger Nordstadt
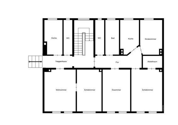
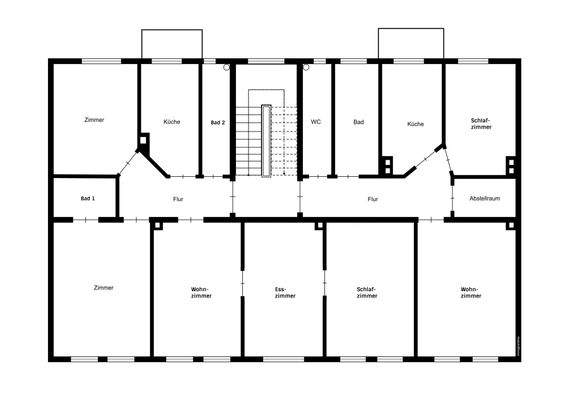
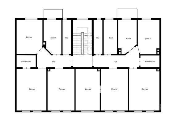
* Insgesamt: 12 Wohneinheiten und 1 Gewerbeeinheit
* Laufend instandgehalten
...weiterlesen auf www.immopartner.de!
Weitere Informationen
Sonstiges
KOSTENFREIE WERTERMITTLUNG
SIE SCHÄTZEN IHRE IMMOBILIE, ABER KENNEN SIE AUCH IHREN REALEN WERT?
Bei einem Verkauf kommt es auf einen punktgenauen Angebotspreis an.
Nutzen Sie jetzt unseren Wertgutschein für Ihre persönliche Immobilienbewertung.
Besichtigung/Hinweis: Eine Innenbesichtigung ist nur...
Online-ID: 2mh9k5f
Referenznummer: IPJW251942
Finde Angebote wie dieses
Hier geht es zu unserem Impressum, den Allgemeinen Geschäftsbedingungen, den Hinweisen zum Datenschutz und nutzungsbasierter Online-Werbung.