

Einfamilienhaus zum Kauf659000 €4.145 €/m²5 Zimmer • 159 m² • 286 m² Grundstück
659000 €
4.145 €/m²
5 Zimmer • 159 m² • 286 m² Grundstück
Großes Einfamilienhauses (Neubau) mit viel Platz in exklusiver und ruhiger Lage in Landsberg am Lech
Merkmale
- Bezug: Frühjahr 2027
- 286 m² Grundstück
- Garage
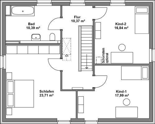
Grundrisse
Grundrisse
1 / 2
Realisiere Dein Projekt
Bausubstanz und Energie
Der Anbieter hat keine Informationen zum Energieverbrauch bereit gestellt.
- Baujahr2027
- HeizungsartFußbodenheizung
- EnergieträgerLuft-/Wasser-Wärmepumpe
Preisdetails
Kaufpreis
659000 €
4.144,65 €/m²
Provision für Käufer
-auf den Grundstückskaufpreis 3,57% inkl. MwSt.
Weitere Preisinformationen
1 Garagenstellplatz
Geschätzte Gesamtkosten
718.771 €1
Kaufpreis
659.000 €
Kaufnebenkosten
59.771 €
2Notarkosten (1,5%)
9.885 €
Grunderwerbsteuer (3,5%)
23.065 €
Provision für Käufer (3,57%)
23.526 €
Grundbucheintrag (0,5%)
3.295 €
1Der angezeigte Wert ist eine automatisch berechnete Schätzung von immowelt.
2Bei den Angaben handelt es sich um ortsübliche Werte. Individuelle Kosten können abweichen.
Lage

Landsberg, Landsberg am Lech (86899)
Der Anbieter hat die genaue Adresse nicht freigegeben
Weitere Informationen
Weitere Services
Lust auf eine Besichtigung?
Eine Frage zur Immobilie?
Über den Anbieter
Immobilien RiedMaklerbüro
Leopoldstr. 244, 80807 München
Partnerschaft
Herr Thomas PfeifferDein Kontakt
Online-ID: 2mh9m5t
Referenznummer: 2758

Immobilien Ried
Bewertung: 4,2 von 5 Sternen
Wie zufrieden bist du mit dieser Seite (nicht mit der Immobilie selbst)?

