
BWH Bauwerk Hamburg Kapital GmbH
Herr Rüdiger Schmitt
040 ···
Nr. anzeigenPreise & Kosten
Provision für Käufer
provisionsfrei
Lage
Der exklusive Stadtteil Uhlenhorst ist bekannt für seine Vielfalt und der
direkten Lage an der Außenalster. Hier findet man alles, was das Herz begehrt – Freizeit, Kultur, Sport sowie diverse Cafés, Bars,
Restaurants und vieles mehr. Die Hamburger Meile, die beliebten
Einkaufsstraßen Hofweg und Papenhuder Straße, der...
Die Wohnung
Wohnungslage
3. Geschoss
Derzeitige Nutzung
frei
Wohnanlage
Energie & Heizung
Warum sehe ich diese Anzeige? – Du siehst diese Anzeige basierend auf Ihrer Navigation auf unserer Website und den Suchkriterien, die du verwendet hast.
Energieausweistyp
Verbrauchsausweis
Gebäudetyp
Wohngebäude
Baujahr laut Energieausweis
1998
Wesentliche Energieträger
Fern-/ Nahwärme
Gültigkeit
09.07.2018 bis 09.07.2028
Effizienzklasse
C
Endenergieverbrauch
77,00 kWh/(m²·a) - Warmwasser enthalten
Weitere Energiedaten
Energieträger
Fernwärme
Details
Objektbeschreibung
Mitten im Herzen von Uhlenhorst, im beliebten Hofweg, befindet sich dieses
charmante Rotklinkergebäude. Errichtet wurde es im Jahr 1998 und
beherbergt 29 Wohneinheiten sowie eine großzügige Gewerbefläche im
Erdgeschoss. Das Haus erstreckt sich über fünf Etagen, die bequem per
Aufzug erreichbar sind. Das gesamte...
Ausstattung
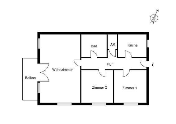
Die 3-Zimmerwohnung liegt im 3. Obergeschoss rechts und
wurde kürzlich frisch gestrichen.
Die Ausstattung der Wohnung auf einen Blick:
- Großzügiger Wohn- und Essbereich mit Zugang zum sonnigen Balkon
- 2 gleich große Schlafzimmer
- Parkettboden in allen Wohnräumen
- Einbauküche mit hellen...
Weitere Informationen
Sonstiges
Diese Verkaufsaufgabe haben wir nach bestem Wissen und Gewissen erstellt.
Trotz nötiger Sorgfalt übernehmen wir keine Gewähr für die Richtigkeit, Aktualität und Vollständigkeit der Angaben. Fehler, Änderungen, Irrtümer und der Zwischenverkauf bleiben jederzeit vorbehalten. Der Inhalt ist vertraulich und nur...
Dokumente
Anbieter der Immobilie

BWH Bauwerk Hamburg Kapital GmbH
Ehrenbergstr. 54, 22767 Hamburg
Online-ID: 2mhal5k
Referenznummer: HW81 WE26.20
Finde Angebote wie dieses
Hier geht es zu unserem Impressum, den Allgemeinen Geschäftsbedingungen, den Hinweisen zum Datenschutz und nutzungsbasierter Online-Werbung.