
Crozilla.com
Opereta
+38 ···
Nr. anzeigenPreise & Kosten
Provision für Käufer
Bitte beachte, das Angebot kann bei Vertragsabschluss die Zahlung einer Provision beinhalten. Weitere Informationen erhältst Du vom Anbieter.
Die Wohnung
Wohnungslage
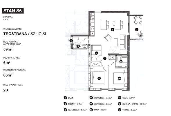
2. Geschoss
Details
Objektbeschreibung
Neubau in Vrboska (Hvar) - Wohnung im zweiten Stock mit Terrasse
Im idyllischen Küstendorf Vrboska auf der sonnigen Insel Hvar entstehen zwei kleinere Wohngebäude mit insgesamt 16 Wohnungen, die sich über vier Etagen erstrecken.
Dieses neue Wohnprojekt befindet sich in einer ruhigen, leicht erhöhten Lage, etwa...
Weitere Informationen
Stichworte
Anzahl der Schlafzimmer: 2, Anzahl der Badezimmer: 2
Anbieter der Immobilie
Crozilla.com
Nova cesta 60, 10000 ZAGREB
Online-ID: 2mhb455
Referenznummer: 17198178_5
Finde Angebote wie dieses
Hier geht es zu unserem Impressum, den Allgemeinen Geschäftsbedingungen, den Hinweisen zum Datenschutz und nutzungsbasierter Online-Werbung.