Saxonia Metropol GmbH Dresden Lizenzpartner der Engel & Völkers Residential GmbH

Engel & Völkers Dresden Blaues Wunder

Einzigartige Immobilie mit viel Potential und für unterschiedliche Lebenskonzepte!

€ 275.000
Kaufpreis
133 m²
Wohnfläche ca.
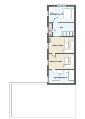
16
Zimmer
1 507 m²
Grundstücksfl. ca.

Der Anbieter dieses Objekts hat gegenüber der AVIV Germany GmbH als Betreiber dieses Online-Marktplatzes erklärt, nicht als Unternehmer im Sinne des § 1 KSchG zu handeln. Die im Verbraucherschutzrecht der Union verankerten Verbraucherrechte (insbesondere Informationspflichten und Rücktritts- bzw. Widerrufsrechte) finden auf den Vertrag zwischen dem Anbieter des Objekts und Ihnen (dem Interessenten) keine Anwendung.

Gewerblicher Anbieter

Der Anbieter dieses Objekts hat gegenüber der AVIV Germany GmbH als Betreiber dieses Online-Marktplatzes erklärt, als Unternehmer im Sinne des § 1 KSchG zu handeln.

AdresseStraße nicht freigegeben
03229 Altdöbern 
Auf Karte ansehen

Preise & Kosten

Kaufpreis € 275.000

Provision für Käufer

3.57 % inkl. gesetzl. MwSt.
Der Makler-Vertrag mit uns kommt durch die Beauftragung der Maklertätigkeit in Textform (z.B. E-Mail mit Bestätigung der gewollten Inanspruchnahme) zustande. Weitere Informationen siehe Provisionshinweis.

Lage

Altdöbern ist eine charmante Gemeinde im Süden Brandenburgs im Landkreis Oberspreewald-Lausitz. Geprägt wird der Ort durch seine idyllische Lage inmitten des entstehenden Lausitzer Seenlandes sowie durch seine historische Bausubstanz und kulturelle Vielfalt. Der Ortskern ist von gepflegten Altbauten, ruhigen Wohnstraßen und...

Mehr anzeigen

Das Haus

Kategorie

Mehrfamilienhaus

Geschosse

2 Geschosse

Baujahr

1578

  • Zustand: gepflegt
  • teilweise unterkellert
  • Terrasse, Garten, Balkon
  • 8 Stellplätze
  • Gäste-WC
  • Einbauküche
  • Böden: Fliesenboden, Laminat, Teppichboden
  • als Ferienimmobilie geeignet
  • Ausstattung: möbliert

Energie & Heizung

A+
A
B
C
D
E
F
G
H
0 25 50 75 100 125 150 175 200 225 250 +

Energieausweistyp

Bedarfsausweis

Gebäudetyp

Wohngebäude

Baujahr laut Energieausweis

1578

Gültigkeit

seit 20.02.2025

Effizienzklasse

H

Endenergiebedarf

355,80 kWh/(m²·a)

Weitere Energiedaten

Energieträger

Öl

Heizungsart

offener Kamin

Details

Objektbeschreibung

Willkommen zu einer außergewöhnlichen Immobilie, die vielfältige Nutzungsmöglichkeiten auf einem großzügigen Grundstück vereint. Ob als Wohnsitz mit angeschlossenem Gewerbe oder zur Eigennutzung - dieses Ensemble bietet Raum für individuelle Lebenskonzepte und Ideen. Die charmante und gepflegte Immobilie besticht durch ihre...

Mehr anzeigen

Ausstattung

Einbauküche, Einbaumöbel, Möbiliert

Weitere Informationen

Provisionshinweis
3.57 % inkl. gesetzl. MwSt.
Der Makler-Vertrag mit uns kommt durch die Beauftragung der Maklertätigkeit in Textform (z.B. E-Mail mit Bestätigung der gewollten Inanspruchnahme) zustande. Die Höhe der Courtage richtet sich nach den ab dem 23.12.2020 in Kraft getretenen gesetzlichen Regelungen zur Teilung...

Mehr anzeigen

Anbieter der Immobilie

Partner
user

Engel & Völkers Dresden Blaues Wunder

Dein Ansprechpartner

Anbieter-Website Anbieter-Profil Anbieter-Impressum

Online-ID: 2mhc65n

Referenznummer: I-02ZZR6-W-02ZZR6

Finde Angebote wie dieses

imageimageimage

Hier geht es zu unserem Impressum, den Allgemeinen Geschäftsbedingungen, den Hinweisen zum Datenschutz und nutzungsbasierter Online-Werbung.