
Schwabenhaus Leipzig - Simone Krüger - Handelsvertretung für die Schwabenhaus GmbH
Simone Krüger
+49 ···
Nr. anzeigenPreise & Kosten
Provision für Käufer
provisionsfrei
Lage
Das Baugebiet "Fuhneanger" befindet sich im Norden der Stadt Wolfen im Landkreis Bitterfeld-Wolfen. Wolfen liegt etwa 30 km nordöstlich von Halle (Saale) und 45 km nördlich von Leipzig. Wolfen besitzt einen Bahnhof an der Bahnstrecke Dessau-Leipzig. Hier halten Regional-Express-Züge der Linie Leipzig-Magdeburg und die Linie...
Das Haus
Kategorie
Einfamilienhaus
Energie & Heizung
Warum sehe ich diese Anzeige? – Du siehst diese Anzeige basierend auf Ihrer Navigation auf unserer Website und den Suchkriterien, die du verwendet hast.
Weitere Energiedaten
Heizungsart
Fußbodenheizung
Details
Objektbeschreibung
Herzlich willkommen in Ihrem neuen Zuhause, das speziell für Familien und herzliche Menschen gestaltet wurde! Dieses großzügige Haus bietet nicht nur ausreichend Platz für Ihre Lieben, sondern auch eine warme und einladende Atmosphäre.
Im Erdgeschoss erwartet Sie ein geräumiges Wohnzimmer mit großen Fenstern, die viel...
Ausstattung
Neben kurzen Bauzeiten, innovativer Haustechnik, attraktiver Architektur und hochwertiger Manufaktur-Qualität bietet Ihnen das angebotene Schwabenhaus im "Green-Edition" All-Inclusive-Paket folgende Mehr-Werte:
- Bodenplatte inkl. Effizienzhaus 55 Perimeter-Dämmung unterhalb der Bodenplatte sowie stirnseitig
-...
Weitere Informationen
Sonstiges
Vereinbaren Sie einen persönlichen Beratungstermin, um über Ihren Haustraum und das angebotene Objekt zu sprechen.
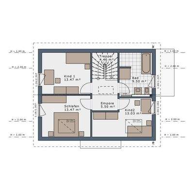
Bitte beachten Sie, dass die dargestellten Bilder und Grundrisse nur beispielhaft sind und unter Umständen Sonderbauteile enthalten, die nicht im aufgerufenen Preis inkludiert sind.
Haben...
Anbieter der Immobilie
Schwabenhaus Leipzig - Simone Krüger - Handelsvertretung für die Schwabenhaus GmbH
Siedlung der Einheit 1b, 04838 Zschepplin
Online-ID: 2mhct5z
Referenznummer: SH-363991
Finde Angebote wie dieses
Hier geht es zu unserem Impressum, den Allgemeinen Geschäftsbedingungen, den Hinweisen zum Datenschutz und nutzungsbasierter Online-Werbung.