
McMakler GmbH
Ihr McMakler Team
080 ···
Nr. anzeigenPreise & Kosten
Provision für Käufer
Die Provision i.H.v. 3,57 % inkl. MwSt. ist mit Kaufvertragsbeurkundung fällig, sofern der Verkaufspreis über 83.000,00 € liegt.
Liegt der Verkaufspreis dagegen bei/unter 83. Weitere Informationen siehe Provisionshinweis.
Lage
Lage: Zentrumsnahe Bestlage nahe Stadtpark und Kurklinikum bietet einen bequemen und fußläufigen Alltag
Bildung und Betreuung: Familienfreundliche Lage dank Kindergarten und Schule in fußläufiger Entfernung
Nahversorgung: Supermarkt, Apotheke und Bankfiliale in max. 800 m Entfernung
Anbindung: Bushaltestelle sowie...
Das Renditeobjekt
Baujahr
1949
Bezug
nach Absprache
Energie & Heizung
Warum sehe ich diese Anzeige? – Du siehst diese Anzeige basierend auf Ihrer Navigation auf unserer Website und den Suchkriterien, die du verwendet hast.
Energieausweistyp
Verbrauchsausweis
Gebäudetyp
Wohngebäude
Baujahr laut Energieausweis
1949
Wesentliche Energieträger
Gas
Effizienzklasse
D
Endenergieverbrauch
111,50 kWh/(m²·a)
Weitere Energiedaten
Energieträger
Gas
Heizungsart
Zentralheizung
Details
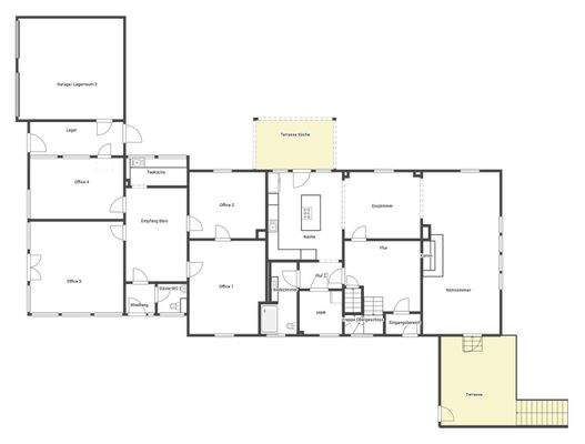
Objektbeschreibung
Objektnr: 1060403
Als ideale Option für Eigennutzung oder Investment präsentiert sich dieses großzügige Einfamilienhaus mit Gewerbeeinheit (ca. 100 m², 4 Räume) in bester Lage von Bad Fallingbostel. Besonderer Komfort entsteht durch den Top-Zustand des Objektes aus dem Baujahr 1948: Es präsentiert sich vollständig...
Ausstattung
+ In einer zentralen Umgebung von Bad Fallingbostel, in bester Nachbarschaft, mit Gewerbeeinheit
+ Entspannung im Freien: Der Süd-Garten mit Grillplatz und Bachlauf auf ca. 1.046 m² großzügigem Grund lädt zum Verweilen ein, etwa im eigenen Gartenhaus - 3 Terrassen bereichern das Erlebnis
+ Die Immobilie präsentiert...
Weitere Informationen
Provisionshinweis
Die Provision i.H.v. 3,57 % inkl. MwSt. ist mit Kaufvertragsbeurkundung fällig, sofern der Verkaufspreis über 83.000,00 € liegt.
Liegt der Verkaufspreis dagegen bei/unter 83.000,00 €, ist die fest vereinbarte Mindestprovision i.H.v. mind. 5.950,00 € inkl. MwSt. mit Kaufvertragsbeurkundung fällig...
Anbieter der Immobilie
McMakler GmbH
Am Postbahnhof 17, 10243 Berlin
Online-ID: 2mhdn5j
Referenznummer: 2d83ec022a
Finde Angebote wie dieses
Hier geht es zu unserem Impressum, den Allgemeinen Geschäftsbedingungen, den Hinweisen zum Datenschutz und nutzungsbasierter Online-Werbung.