
McMakler GmbH
Ihr McMakler Team
080 ···
Nr. anzeigenPreise & Kosten
Provision für Käufer
Die Provision i.H.v. 3,57 % inkl. MwSt. ist mit Kaufvertragsbeurkundung fällig, sofern der Verkaufspreis über 83.000,00 € liegt.
Liegt der Verkaufspreis dagegen bei/unter 83. Weitere Informationen siehe Provisionshinweis.
Lage
Lage: gute Anbindung ans Zentrum und ins Gewerbegebiet
Bildung und Betreuung: 3 Kindergärten und 2 Schulen in 1,5 km
Nahversorgung: 4 Supermärkte, Apotheke, Bankfiliale und 2 Postfilialen in max. 1,5 km
Anbindung: Bushaltestellen fußläufig, Bahnhof und Autobahn komfortabel erreichbar
Das Renditeobjekt
Baujahr
1934
Bezug
nach Absprache
Energie & Heizung
Warum sehe ich diese Anzeige? – Du siehst diese Anzeige basierend auf Ihrer Navigation auf unserer Website und den Suchkriterien, die du verwendet hast.
Energieausweistyp
Bedarfsausweis
Gebäudetyp
Wohngebäude
Baujahr laut Energieausweis
1934
Wesentliche Energieträger
Öl
Effizienzklasse
H
Endenergiebedarf
424,70 kWh/(m²·a)
Weitere Energiedaten
Energieträger
Öl
Heizungsart
Zentralheizung
Details
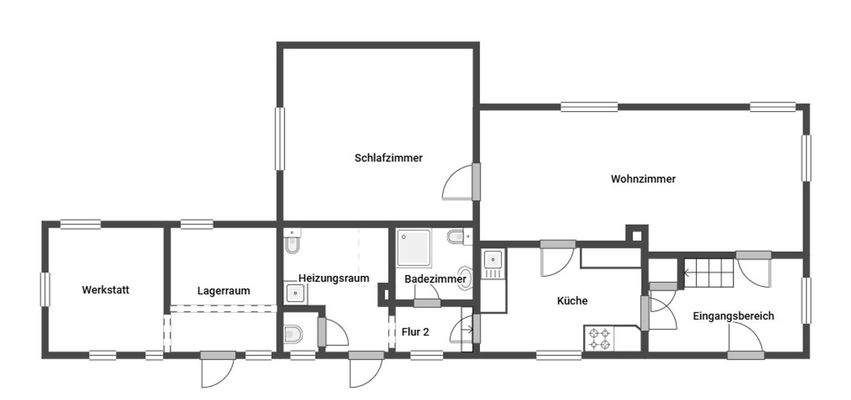
Objektbeschreibung
Objektnr: 1065493
Das von einem idyllischen Garten umgebene Einfamilienhaus mit guter Anbindung sowohl ins Zentrum als auch zum Gewerbegebiet ist perfekt für die eigene Nutzung und Umgestaltung geeignet. Der Grundriss bildet eine solide Grundlage für notwendige Modernisierung. Im Jahr 2007 wurden schon einige neue...
Ausstattung
+ In Vorstadtlage von Husum, empfiehlt sich das Objekt sowohl zur Eigennutzung als auch zur Vermietung
+ Der teils sichtgeschützte Süd-Garten auf ca. 674 m² Grund lädt zum Verweilen ein
+ Das Objekt präsentiert sich in einem renovierungsbedürftigen Zustand - die letzten Modernisierungsmaßnahmen erfolgten im Jahr 2007...
Weitere Informationen
Provisionshinweis
Die Provision i.H.v. 3,57 % inkl. MwSt. ist mit Kaufvertragsbeurkundung fällig, sofern der Verkaufspreis über 83.000,00 € liegt.
Liegt der Verkaufspreis dagegen bei/unter 83.000,00 €, ist die fest vereinbarte Mindestprovision i.H.v. mind. 5.950,00 € inkl. MwSt. mit Kaufvertragsbeurkundung fällig...
Anbieter der Immobilie
McMakler GmbH
Am Postbahnhof 17, 10243 Berlin
Online-ID: 2mhfk5d
Referenznummer: 1da9937089
Finde Angebote wie dieses
Hier geht es zu unserem Impressum, den Allgemeinen Geschäftsbedingungen, den Hinweisen zum Datenschutz und nutzungsbasierter Online-Werbung.