

EDE INVEST GmbH & Co. KG
Herr Max Hoffmann
+49 ···
Nr. anzeigenPreise & Kosten
Provision für Mieter
Bitte beachte, das Angebot kann bei Vertragsabschluss die Zahlung einer Provision beinhalten. Weitere Informationen erhältst Du vom Anbieter.
Warum sehe ich diese Anzeige? – Du siehst diese Anzeige basierend auf Ihrer Navigation auf unserer Website und den Suchkriterien, die du verwendet hast.
Lage
Erstklassige Lage im Businesspark Schwaig - Flughafen München in direkter Nähe
Der Standort liegt im etablierten Gewerbegebiet Schwaig in der Gemeinde Oberding, nur wenige Minuten vom Flughafen München entfernt. Die optimale Verkehrsanbindung an die A92 sowie der Anschluss an den öffentlichen Nahverkehr über Buslinien...
Büro-/Praxisfläche
Kategorie
Bürokomplex
Baujahr
2001
Energie & Heizung
Warum sehe ich diese Anzeige? – Du siehst diese Anzeige basierend auf Ihrer Navigation auf unserer Website und den Suchkriterien, die du verwendet hast.
Wärme
Strom
Energieausweistyp
Bedarfsausweis
Gebäudetyp
Nicht-Wohngebäude
Wesentliche Energieträger
GAS
Gültigkeit
bis 15.06.2028
Endenergiebedarf (Wärme)
57,50 kWh/(m²·a)
Endenergiebedarf (Strom)
3,50 kWh/(m²·a)
Weitere Energiedaten
Energieträger
Gas
Heizungsart
Zentralheizung
Details
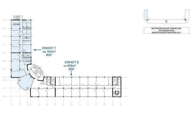
Objektbeschreibung
Attraktive Büroflächen in Flughafennähe - flexibel, modern und sofort verfügbar
In direkter Nähe zum Flughafen München präsentiert sich dieses repräsentative Bürogebäude mit moderner Beton-Glasfassade und hochwertiger Ausstattung. Die Büroflächen sind flexibel teilbar, verfügen über eine effiziente Raumstruktur und...
Ausstattung
- Hohlraum- bzw. Doppelboden mit CAT 5/7-Verkabelung
- Außenliegender Sonnen- und Blendschutz
- Teppichboden (nach Absprache veränderbar)
- Arbeitsplatzgerechte Beleuchtung
- Teeküchenanschluss möglich
- Getrennte Damen- und Herren-WCs
- Verglaster Personenaufzug
- Teilweise...
Weitere Informationen
Sonstiges
Alle in diesem Exposé verwendeten Angaben beruhen auf Informationen von Dritten (z.B. Eigentümer, Hausverwaltung, etc.) und daher freibleibend und ohne jegliche Gewähr. Zahlenangaben sind immer als ca-Angaben zu verstehen. Irrtum, Änderungen, Zwischenverkauf oder Zwischenvermietung bleiben vorbehalten. Die...
Anbieter der Immobilie
EDE INVEST GmbH & Co. KG
Bavariaring 18, 80336 München

Online-ID: 2mhg85k
Referenznummer: 5825_3
Finde Angebote wie dieses
Hier geht es zu unserem Impressum, den Allgemeinen Geschäftsbedingungen, den Hinweisen zum Datenschutz und nutzungsbasierter Online-Werbung.