
ASPRO GmbH
Frau Nicole Mouget
068 ···
Nr. anzeigenPreise & Kosten
Provision für Käufer
Provisionsfrei
Lage
Saarlouis
Die heimliche Hauptstadt des Saarlandes. Sie ist eine der schönsten Städte des Saarlandes. Der historische Stadtkern mit der Festungsanlage und die sehr ausgiebige Einkaufsmeile rund um den großen Markt, im Zentrum der Stadt, ziehen viele Menschen aus dem Umland täglich an. Der neu gestaltete kleine Markt mit...
Die Wohnung
Wohnungslage
Erdgeschoss
Bezug
01.02.2028
Wohnanlage
Energie & Heizung
Warum sehe ich diese Anzeige? – Du siehst diese Anzeige basierend auf Ihrer Navigation auf unserer Website und den Suchkriterien, die du verwendet hast.
Weitere Energiedaten
Energieträger
Fernwärme
Details
Objektbeschreibung
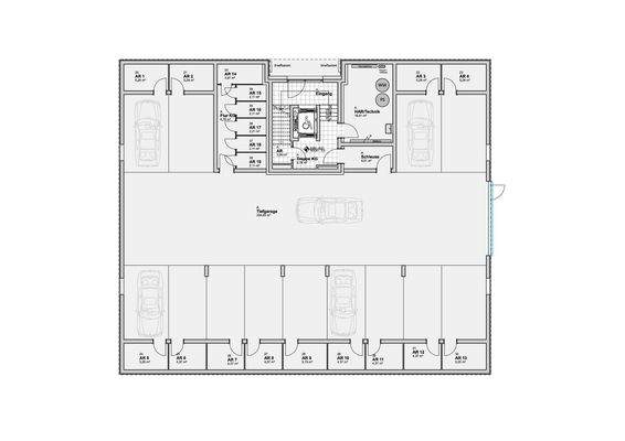
Hier handelt es sich um die Wohnung Nr. 1 (s. Plan), Erdgeschoß (Hochparterre).
Wir bauen die KFW-Effizienzhaus-Stufe 40.
Neubau eines Mehrfamilienhauses mit 19 Wohnungen von Erdgeschoss bis 3. Obergeschoß, 13 TG-Stellplätzen mit dahinter liegenden Kellerräumen und 16 Außenstellplätzen und einer Müll- und...
Ausstattung
nach Bemusterung
Weitere Informationen
Stichworte
Tiefgarage vorhanden, Stellplatz vorhanden, Nutzfläche: 78,53 m², Anzahl der Schlafzimmer: 2, Anzahl der Badezimmer: 1, Anzahl Balkone: 1, Balkon-Terrassen-Fläche: 11,77 m², 5 Etagen, Stadtzentrumslage
Sonstiges/Wohnen: seniorengerechtes Wohnen
Anbieter der Immobilie

ASPRO GmbH
Ludwig-Karl-Balzer-Allee 5, 66740 Saarlouis
Online-ID: 2mhhy5a
Referenznummer: 461#Q1xtpE
Finde Angebote wie dieses
Hier geht es zu unserem Impressum, den Allgemeinen Geschäftsbedingungen, den Hinweisen zum Datenschutz und nutzungsbasierter Online-Werbung.