

Costa Blanca Immobilien
Frau Katja Priemer
+49 ···
Nr. anzeigenPreise & Kosten
Provision für Käufer
provisionsfrei
Das Haus
Kategorie
Villa
Details
Objektbeschreibung
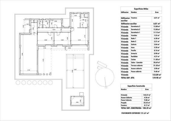
Neubau-Villa in Aspe, Costa Blanca – privater Pool, Garten und großzügige Terrasse
In der Gemeinde Aspe entstehen moderne Neubauvillen auf großzügigen rustikalen Grundstücken von über 10.000 m², wovon ca. 2.500 m² eingezäunt werden. Diese Villa verfügt über drei Schlafzimmer, drei Badezimmer, einen offenen Wohn- und...
Weitere Informationen
Unsere Homepage
Schauen Sie doch bitte auch auf unserer Homepage:
www.neubaucostablanca.de
Hier finden Sie eine große Auswahl toller Objekte.
Durch unsere Kooperation mit allen Bauträgern an der Costa Blanca können Sie mit uns jederzeit jedes Neubauobjekt besichtigen. Ein deutschsprachiger Immobilienmakler wird...
Anbieter der Immobilie

Online-ID: 2mhj95v
Referenznummer: CBI-G-8935
Finde Angebote wie dieses
Hier geht es zu unserem Impressum, den Allgemeinen Geschäftsbedingungen, den Hinweisen zum Datenschutz und nutzungsbasierter Online-Werbung.