
ÄRZTE & APOTHEKER IMMOBILIEN
Herr Alexander Rixen
004 ···
Nr. anzeigenPreise & Kosten
Provision für Käufer
3,50 % inkl. MwSt.
Lage
Die Immobilie befindet sich in einer der begehrtesten Lagen Hamburgs - im Stadtteil Winterhude. Geprägt von repräsentativen Altbauten, charmanten Stadtvillen und einer hervorragenden Infrastruktur, zählt diese Adresse zu den gefragtesten Wohngegenden der Hansestadt.
Exklusive Wohnlage mit urbanem Flair!
Winterhude...
Büro-/Praxisfläche
Kategorie
Bürofläche
Baujahr
1975
Bezug
Nach Absprache
Derzeitige Nutzung
vermietet
Energie & Heizung
Warum sehe ich diese Anzeige? – Du siehst diese Anzeige basierend auf Ihrer Navigation auf unserer Website und den Suchkriterien, die du verwendet hast.
Wärme
Energieausweistyp
Bedarfsausweis
Gebäudetyp
Nicht-Wohngebäude
Baujahr laut Energieausweis
1975
Wesentliche Energieträger
GAS
Gültigkeit
bis 04.04.2034
Endenergiebedarf (Wärme)
143,30 kWh/(m²·a)
Details
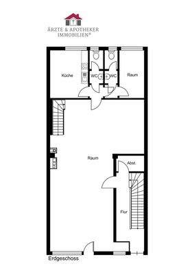
Objektbeschreibung
Die angebotene Immobilie präsentiert sich als solide Kapitalanlage mit attraktiven Perspektiven. Durch die bestehende Vermietung ergibt sich für Investoren eine hohe Planungssicherheit und eine verlässliche Einnahmesituation, die eine nachhaltige Rendite ermöglicht. Dies schafft eine solide Grundlage für eine langfristige und...
Ausstattung
- laufender Mietvertrag bis 2029 plus Option auf weitere 5 Jahre
- Mieter hat zum Einzug Fläche sehr aufwändig umgebaut:
- neue Badezimmer
- Küche umgebaut/erneuert
- Wände neu gezogen um mehr Räume zu haben, inkl. neuer Türen
- Abgang zum UG per Trockenbau abgetrennt mit eigener Tür
- neuer Bodenbelag
Preisinformation
Ist-Mieteinnahmen pro Jahr: 42.600,00 EUR
Weitere Informationen
Sonstiges
Vielen Dank für Ihr Interesse an der von uns angebotenen Immobilie.
Bitte haben Sie Verständnis dafür, dass wir unseren Auftraggebern Diskretion zugesagt haben und Sie daher um die Angabe Ihrer vollständigen Kontaktdaten inkl. Ihrer Telefonnummer bitten müssen.
Gern senden wir Ihnen anschließend ein...
Anbieter der Immobilie
ÄRZTE & APOTHEKER IMMOBILIEN
Lindenstr. 29, 21335 Lüneburg
Online-ID: 2mhk25l
Referenznummer: 242058-7-49
Finde Angebote wie dieses
Hier geht es zu unserem Impressum, den Allgemeinen Geschäftsbedingungen, den Hinweisen zum Datenschutz und nutzungsbasierter Online-Werbung.