
Hansestadt Immobilien GmbH
Tabea Kieselbach
041 ···
Nr. anzeigenPreise & Kosten
Provision für Käufer
3,57 [inkl. der gesetzlichen MwSt.]
Lage
Das Einfamilienhaus befindet sich in einer ruhigen, familienfreundlichen Wohngegend in Barnstedt mit guter Anbindung an Infrastruktur und Freizeitmöglichkeiten. Einkaufsmöglichkeiten sind in der Nähe, darunter Supermärkte und kleine Fachgeschäfte. Familien profitieren von der Grundschule sowie weiteren Bildungseinrichtungen...
Das Haus
Baujahr
1966
Energie & Heizung
Warum sehe ich diese Anzeige? – Du siehst diese Anzeige basierend auf Ihrer Navigation auf unserer Website und den Suchkriterien, die du verwendet hast.
Energieausweistyp
Bedarfsausweis
Gebäudetyp
Wohngebäude
Wesentliche Energieträger
Gas
Gültigkeit
27.05.2025 bis 26.05.2035
Effizienzklasse
G
Endenergiebedarf
231,29 kWh/(m²·a)
Weitere Energiedaten
Energieträger
Gas
Heizungsart
offener Kamin
Details
Objektbeschreibung
Dieses Einfamilienhaus aus dem Jahr 1966 befindet sich in ruhiger Lage von Barnstedt und bietet vielfältige Nutzungsmöglichkeiten - ob als großzügiges Familiendomizil oder als Einfamilienhaus mit Einliegerwohnung.
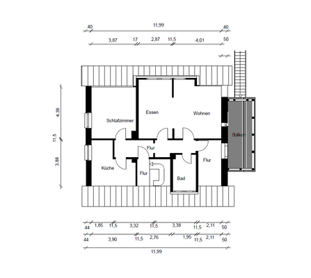
Über den Haupteingang gelangt man in die Erdgeschosswohnung. Vom Flur aus eröffnet sich der geräumige Wohn-...
Ausstattung
. OG wurde 2006 umgebaut
. EG Elektrik teilweise von 1966 teilweise erneuert
. Ruhige Lage
. Großer Garten
. Garage mit Werkstattanbau
. Zwei Wohneinheiten möglich
. Fenster teilweise erneuert 2005
Weitere Informationen
Sonstiges
Bitte haben Sie Verständnis dafür, dass wir unseren Auftraggebern Diskretion zugesagt haben und Ihrer Anfrage nach einem ausführlichen Exposé nur nachkommen können, wenn Sie uns Ihren vollständigen Namen und Ihre postalische Anschrift mitteilen.
Anfragen, die ohne die vollständigen Kontaktdaten übersandt...
Anbieter der Immobilie
Online-ID: 2mhlq5c
Referenznummer: HI2025348
Finde Angebote wie dieses
Hier geht es zu unserem Impressum, den Allgemeinen Geschäftsbedingungen, den Hinweisen zum Datenschutz und nutzungsbasierter Online-Werbung.