

KITZIMMO - Real Estate - OG
Herr Franz Gobec RR Bgm.a.D.
+43 ···
Nr. anzeigenPreise & Kosten
Provision für Käufer
provisionsfrei
Die Wohnung
Wohnungslage
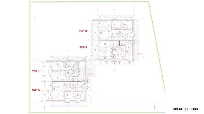
Erdgeschoss
Bezug
Mitte 2026
Wohnanlage
Energie & Heizung
Warum sehe ich diese Anzeige? – Du siehst diese Anzeige basierend auf Ihrer Navigation auf unserer Website und den Suchkriterien, die du verwendet hast.
Weitere Energiedaten
Heizungsart
Fußbodenheizung, Luft-/Wasser-Wärmepumpe
Details
Objektbeschreibung
Eingebettet in den Hohen Tauern befindet sich die malerische Ortschaft Hollersbach.
Mitten in zentraler Lage entsteht eine exklusive Wohnanlage mit 12 Einheiten in einem der schönsten Täler Salzburgs. Das Gebiet rund um Hollersbach und die einzigartige, teilweise unberührte Natur, zieht jedes Jahr zahlreiche Touristen und...
Weitere Informationen
Stichworte
Nord-West-Süd-West-Balkon/Terrasse, Fahrradraum, Anzahl der Schlafzimmer: 2, Anzahl der Badezimmer: 1, Anzahl der separaten WCs: 1, Anzahl Balkone: 1, Balkon-Terrassen-Fläche: 13,37 m², Kellerfläche: 3,24 m², Bundesland: Salzburg
Sonstiges/Wohnen: seniorengerechtes Wohnen
Anbieter der Immobilie

Online-ID: 2mhly53
Referenznummer: MG-0002305_12
Finde Angebote wie dieses
Günstige Immobilienfinanzierung einfach online berechnen
Persönliches Angebot berechnenWarum sehe ich diese Werbung? – Du siehst diese Werbung basierend auf Deiner Navigation auf unserer Website und der von Dir verwendeten Suchkriterien.
Diese Werbung wird bezahlt von durchblicker
Werbung melden
Hier geht es zu unserem Impressum, den Allgemeinen Geschäftsbedingungen, den Hinweisen zum Datenschutz und nutzungsbasierter Online-Werbung.