
Finanzen Hamburg Thorsten Dohrau
Herr Thorsten Dohrau
+49 ···
Nr. anzeigenPreise & Kosten
Kaution
6300
Warum sehe ich diese Anzeige? – Du siehst diese Anzeige basierend auf Ihrer Navigation auf unserer Website und den Suchkriterien, die du verwendet hast.
Lage
Das Projekt liegt zentral im aufstrebenden Stadtteil Berlin-Wedding (Bezirk Mitte), zugleich ruhig im geschützten Innenhof der Pankstraße.
Von hier aus sind Sie bestens angebunden und haben dennoch Ihre Ruhe:
- U6 „Wedding“ und S-Bahn Ring (S41, S42, S46) in 3–5 Minuten erreichbar
- Bushaltestelle M27 direkt an der...
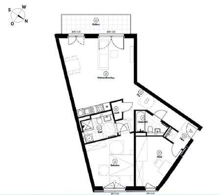
Die Wohnung
Wohnungslage
1. Geschoss (Erdgeschoss)
Bezug
01.02.2026
Derzeitige Nutzung
frei
Wohnanlage
Energie & Heizung
Warum sehe ich diese Anzeige? – Du siehst diese Anzeige basierend auf Ihrer Navigation auf unserer Website und den Suchkriterien, die du verwendet hast.
Energieausweistyp
Bedarfsausweis
Gebäudetyp
Wohngebäude
Baujahr laut Energieausweis
2025
Wesentliche Energieträger
KWK, fossil
Gültigkeit
06.03.2025 bis 05.03.2035
Effizienzklasse
B
Endenergiebedarf
53,80 kWh/(m²·a)
Weitere Energiedaten
Energieträger
Fernwärme
Haustyp
KfW 55
Heizungsart
Fußbodenheizung
Details
Objektbeschreibung
Diese exklusive 3-Zimmer-Wohnung liegt im beliebten Neubauprojekt „Backyard – Schönes.Neues.Wedding“ und verbindet modernes Wohnen mit Ruhe und Privatsphäre. Die Wohnung befindet sich in einer geschützten Hinterhofbebauung — abgeschirmt vom Straßenlärm und umgeben von einer begrünten Innenanlage mit Spiel- und Ruhebereichen.
Ausstattung
Die rund 75 m² große, barrierefreie Wohnung im ersten Obergeschoss überzeugt durch eine durchdachte Raumaufteilung und hochwertige Ausstattung:
- Großer Wohn-/Essbereich mit Küchenanschluss und Zugang zur Terrasse
- Zwei Schlafzimmer, ideal für Paare oder kleine Familien.
- Zwei vollwertige Bäder (bodengleiche Dusche...
Weitere Informationen
Bewerbung, Besichtigung
Mietbedingungen:
Mindestmietdauer beträgt 2 Jahre und es wird eine jährliche 3%ige Staffelmiete vereinbart.
Keine Wohngemeinschaften
Nur an Singles, Paare oder kleine Familien
Bewerbungsunterlagen erforderlich: Selbstauskunft, Bonitätsnachweis, Einkommensnachweis, ggf...
Dokumente
Anbieter der Immobilie
Finanzen Hamburg Thorsten Dohrau
Grindelallee 25, 20146 Hamburg
Online-ID: 2mhpu5h
Finde Angebote wie dieses
Hier geht es zu unserem Impressum, den Allgemeinen Geschäftsbedingungen, den Hinweisen zum Datenschutz und nutzungsbasierter Online-Werbung.