
Anton Schmittlein Construction GmbH
Frau Lucija Brkan
+49 ···
Nr. anzeigenPreise & Kosten
Provision für Käufer
provisionsfrei
Lage
Die Kamminer Straße liegt weniger als 400 m Luftlinie vom Schloß Charlottenburg entfernt und ist Bestandteil einer gepflegten Wohngegend mit klein-gewerblichen Läden und Geschäften unweit der Spree.
Die nahe gelegene Schloßstraße, die eigentlich treffender Schloßallee heißen müsste, vermittelt ein passendes Ambiente...
Büro-/Praxisfläche
Kategorie
Bürofläche
Baujahr
1907
Derzeitige Nutzung
vermietet
Geschoss
Erdgeschoss
Energie & Heizung
Warum sehe ich diese Anzeige? – Du siehst diese Anzeige basierend auf Ihrer Navigation auf unserer Website und den Suchkriterien, die du verwendet hast.
Wärme
Energieausweistyp
Verbrauchsausweis
Gebäudetyp
Nicht-Wohngebäude
Wesentliche Energieträger
Öl
Gültigkeit
28.08.2018 bis 28.08.2028
Endenergieverbrauch (Wärme)
126,00 kWh/(m²·a)
Weitere Energiedaten
Energieträger
Öl
Heizungsart
Zentralheizung
Details
Objektbeschreibung
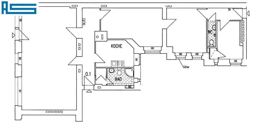
Zum Kauf angeboten wird eine 126,54 m² große, derzeit vermietete Gewerbeeinheit in der Kamminer Straße 2, unweit des Schloss Charlottenburg. Sie bietet mit ihren vier Räumen, einer großen Schaufensterverglasung zur Straße und insgesamt drei Zugängen diverse Nutzungsmöglichkeiten und viel Raum für Ihre kreative Entfaltung...
Ausstattung
Die Gewerbeeinheit ist vermietet. Der Mietvertrag mit einem etablierten, solventen Unternehmen aus der Pflegebranche besteht seit 2019 und läuft mindestens bis zum 30.06.2027. Ab dem 01.07.2026 erhöht sich die monatliche Nettokaltmiete um 20% auf dann 2.275,-- €.
Die Einheit liegt im Erdgeschoss des Vorderhauses und...
Weitere Informationen
Sonstiges
Auch eine Umwandlung in Wohneigentum und potentielle Nutzung als Ferienwohnung scheint denkbar, wurde jedoch bisher nicht konkret überprüft.
Die Kamminer Straße 2 liegt im Geltungsbereich der Erhaltungsverordnung "Mierendorff-Insel".
Stichworte
Wohnfläche: 33,48 m², Anzahl der Schlafzimmer: 1...
Anbieter der Immobilie
Online-ID: 2mhqg5z
Referenznummer: KAM2_WE01/0.1
Finde Angebote wie dieses
Hier geht es zu unserem Impressum, den Allgemeinen Geschäftsbedingungen, den Hinweisen zum Datenschutz und nutzungsbasierter Online-Werbung.